Místo s krásným výhledem do údolí Mnichovic, kde Vás bude budit ranní sluníčko a vůně ovocných stromů. Velmi rozsáhlý pozemek s vlastní příjezdovou komunikací ( dalších 219m2) na kterém stojí rodinný dům, který prochází velmi zajímavou a kvalitní rekonstrukcí.
Lokalita s velmi dobrou dostupností k veškerému zázemí Mnichovic a také k dálnici D1, případně vlakové stanici, což nabízí maximální komfort.
Na pozemku je elektřina, obecní voda a kanalizace a navíc vlastní kopaná studna. A protože je možné tento velký pozemek rozdělit na dva menší, je zde možnost vybudovat další přípojky elektřiny, vody i kanalizace.
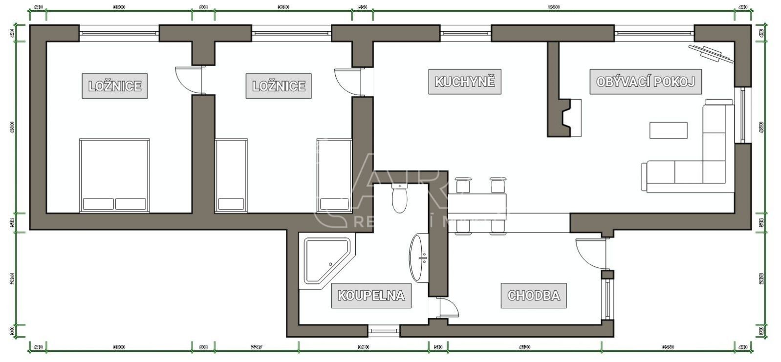
Zděný rodinný dům je aktuálně řešen jako 3KK o užitné ploše 105m2. V plánu je rozšíření na 5kk ve verzi přízemního bungalovu.
U vjezdu na pozemek je dvougaráž a další plocha na odstavení vozidel.
Pozemek je z části rovinatý a v části se vzrostlými stromy, skleníkem a zeleninovými záhony svažitý.
Město Mnichovice disponuje širokou strukturou služeb. Školky, základní škola a gymnázium poskytují kompletní vzdělávací strukturu. Obchody s různým sortimentem umožňují pohodlné zásobování domácnosti. Restaurace a další služby jsou doplněny mnoha možnostmi v oblasti sportovních a volnočasových aktivit.
Blízká dálnice a současně vlaková stanice umožňují komfortní dopravu všemi směry a blízké Říčany doplňují širokou škálu služeb.
Cena:
Cena na vyžádání
Poznámka:
cena u makléře
Plocha:
2043 m²
Číslo zakázky:
REALITYMIX-17613
Podrobné informace
Celková plocha:2043 m²
Druh pozemku:pro bydlení
Inženýrské sítě:vodovod, kanalizace, plyn
Umístění objektu:klidná část obce
Doprava:vlak, dálnice, silnice, autobus
Komunikace:dlážděná
Energetický ukazatel podle vyhlášky:č. 264/2020 Sb.
Uživatel serveru RealityMIX.cz (dále jen „Server“) dostupného na internetové adrese (URL) https://www.realitymix.cz, který provozuje společnost DALTEN media s.r.o., se sídlem Na Harfě 916/9a, Praha 9, 190 00, IČO: 271 35 306 (dále jen „Správce“) jako provozovateli tohoto Serveru uděluje svůj výslovný souhlas v souladu s ustanovením § 5 zákona č. 101/2000 Sb. O ochraně osobních údajů a o změně některých zákonů, v platném znění (dále jen „zákon o ochraně osobních údajů“), se zpracováním uživatelem poskytnutých osobních údajů a dalších dat.
Uživatel poskytuje Správci osobní údaje v rozsahu: jméno, příjmení, e-mailová adresa, telefonický kontakt a další data, a to z důvodu projeveného zájmu o nemovitost, kde prostřednictvím služby Serveru Správce osloví Uživatel inzerenta uvedeného v detailu
nemovitosti - QARA s.r.o. (IČ 01740113) se zájmem o jeho služby. Tato společnost je součástí seskupení/sítě/franšízového modelu realitních kanceláří, jejich seznam můžete zobrazit kliknutím na tento odkaz.
QARA s.r.o. Ostrava (IČ 01740113) , QARA s.r.o. Brno (IČ 01740113) , QARA s.r.o. (IČ 01740113)
Uživatel tyto osobní údaje poskytuje dobrovolně a bere na vědomí, že součástí služeb Správce, které Správce Uživateli poskytuje, je vyhledání všech Uživateli vyhovujících (dle parametrů - cena, typ nemovitosti, lokalita atd.) nemovitostí. Správce za tímto účelem provozuje aplikace Hlídací pes a newsletter. Tyto služby je možné z každého zaslaného emailu odhlásit. Souhlas se zpracováním osobních údajů Uživatel poskytuje Správci na dobu neurčitou s tím, že svůj udělený souhlas může Uživatel kdykoliv na drese správce info@realitymix.cz odvolat. Správce garantuje Uživateli i další práva uvedené v ustanovení §11 a §21 zákoba č. 101/200 Sb. Ve znění pozdějších předpisů.
Více informací o zpracování údajů získáte zde (realitymix.cz/zasady-ochrany-osobnich-udaju)