Novostavba řadového rodinného domu 4+kk s garáží v Polance nad Odrou
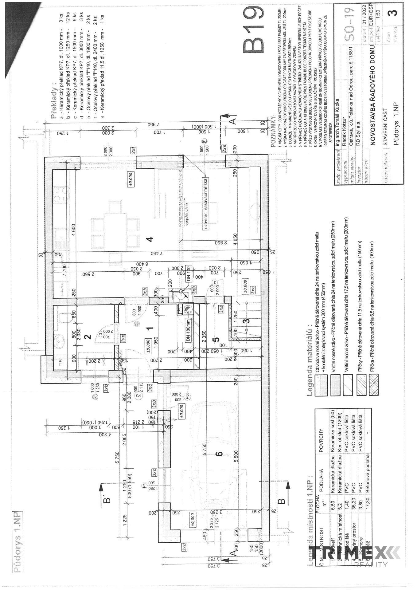
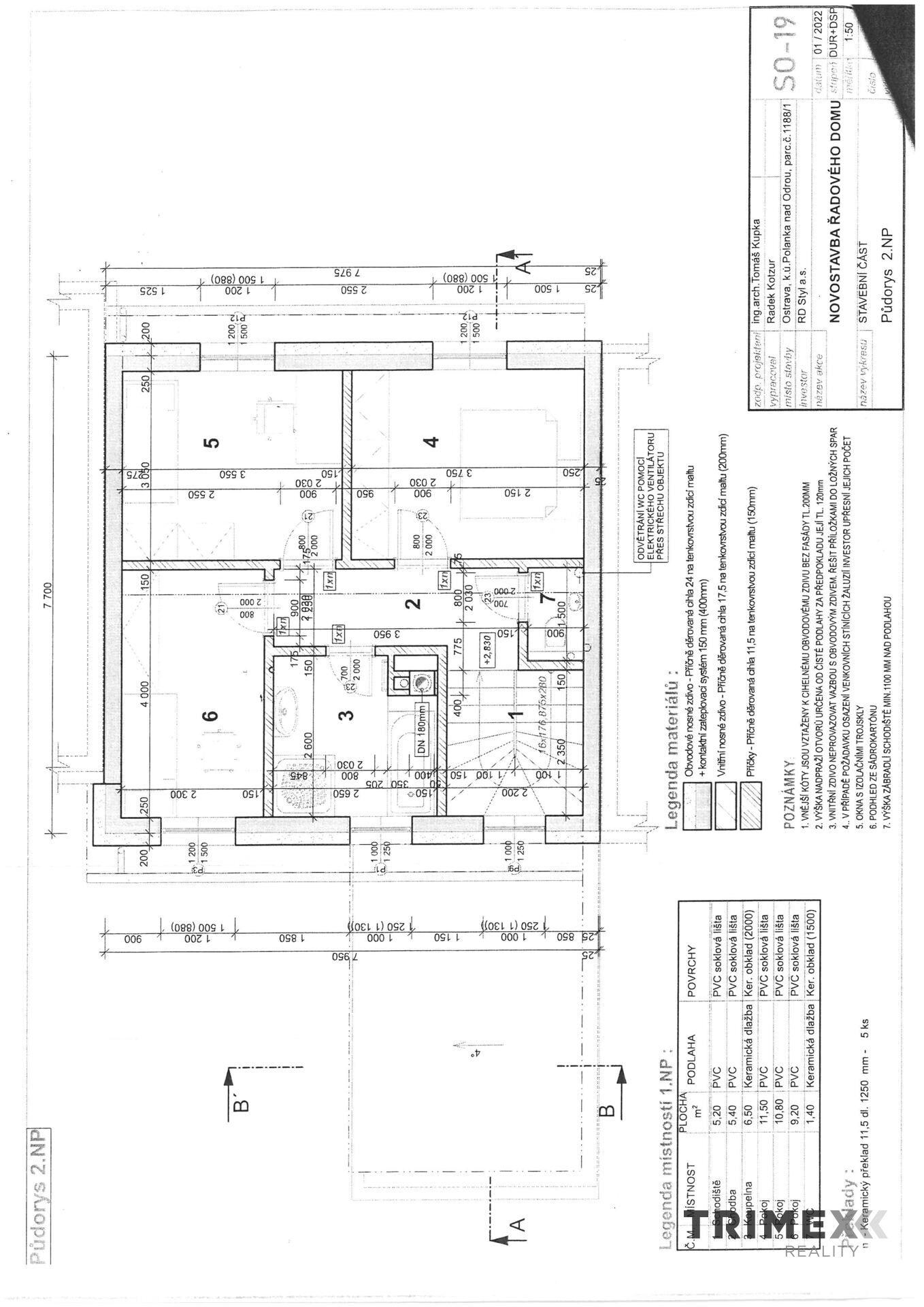
Nabízíme koupi novostavby řadového rodinného domu v Polance nad Odrou. Dům je součástí nové výstavby řadových domů a dvojdomů, s označením B19. Dům nabízí dispozici 4+kk s garáží. V přízemí domu je zádveří, obývací prostor s kuchyňským koutem, technická místnost s WC a přípojkou pro pračku, komora a schodiště do patra. Ve druhém nadzemním podlaží jsou tři pokoje, koupelna s vanou a sprchovacím koutem a samostatné WC. Dům je zděný, zateplený, s platovými okny s trojskly, rovnou střechou elektrickým podlahovým topením a krbem v obývacím pokoji. Dům bude dokončený ve vyšším standardu, než nabízí sousední domy, a to především:
- Dům bude mít FVE elektrárnu se střídačem pro bateriové uložiště,
- Regulaci topení přes mobilní aplikaci,
- Rozvody pro alarm,
- Nabíječku pro elektromobil v garáži,
- Na terase bude zděná clona se sousedními pozemky,
- Venkovní žaluzie pro tepelný komfort,
- Přípravu pro klimatizaci,
- Pohledový beton v obývacím pokoji,
- Vyšší standard v koupelně,
- Dubové vinylové podlahy vyšší kvality,
- Nerezové zábradlí s dubovým madlem,
- Termín kolaudace je v únoru 2026.
Polanka nad Odrou nabízí širokou škálu občanské vybavenosti a vyžití - základní školy, obchod s potravinami, restaurace, ale také sportovní areál, kde si přijdou na své děti, ale taky dospělí. Pro větší nákupy a dojíždění do práce stačí nasednout na blízké zastávce do autobusu MHD a dojet do centra města Ostravy.
Pomocí naší hypoteční kalkulačky si můžete udělat orientační představu o výši měsíčních splátek hypotéky. O vše ostatní se pak postaráme my ve spolupráci s našimi obchodními partnery.
40 447 Kč
* Odhadovaná měsíční splátka vychází z výše úvěru Kč s pevnou úrokovou sazbou % po celou dobu trvání úvěru.
Uživatel serveru RealityMIX.cz (dále jen „Server“) dostupného na internetové adrese (URL) https://www.realitymix.cz, který provozuje společnost DALTEN media s.r.o., se sídlem Na Harfě 916/9a, Praha 9, 190 00, IČO: 271 35 306 (dále jen „Správce“) jako provozovateli tohoto Serveru uděluje svůj výslovný souhlas v souladu s ustanovením § 5 zákona č. 101/2000 Sb. O ochraně osobních údajů a o změně některých zákonů, v platném znění (dále jen „zákon o ochraně osobních údajů“), se zpracováním uživatelem poskytnutých osobních údajů a dalších dat.
Uživatel poskytuje Správci osobní údaje v rozsahu: jméno, příjmení, e-mailová adresa, telefonický kontakt a další data, a to z důvodu projeveného zájmu o nemovitost, kde prostřednictvím služby Serveru Správce osloví Uživatel inzerenta uvedeného v detailu
nemovitosti - TRIMEX REALITY, a.s. (IČ 26824019) se zájmem o jeho služby.
Uživatel tyto osobní údaje poskytuje dobrovolně a bere na vědomí, že součástí služeb Správce, které Správce Uživateli poskytuje, je vyhledání všech Uživateli vyhovujících (dle parametrů - cena, typ nemovitosti, lokalita atd.) nemovitostí. Správce za tímto účelem provozuje aplikace Hlídací pes a newsletter. Tyto služby je možné z každého zaslaného emailu odhlásit. Souhlas se zpracováním osobních údajů Uživatel poskytuje Správci na dobu neurčitou s tím, že svůj udělený souhlas může Uživatel kdykoliv na drese správce info@realitymix.cz odvolat. Správce garantuje Uživateli i další práva uvedené v ustanovení §11 a §21 zákoba č. 101/200 Sb. Ve znění pozdějších předpisů.
Více informací o zpracování údajů získáte zde (realitymix.cz/zasady-ochrany-osobnich-udaju)