Pronájem novostavby skladu, výrobních prostor 1.100 m², Plzeň 4
Pronájem skladu, výrobních prostor 1100 m² Plzeň 4- Jateční ulice.
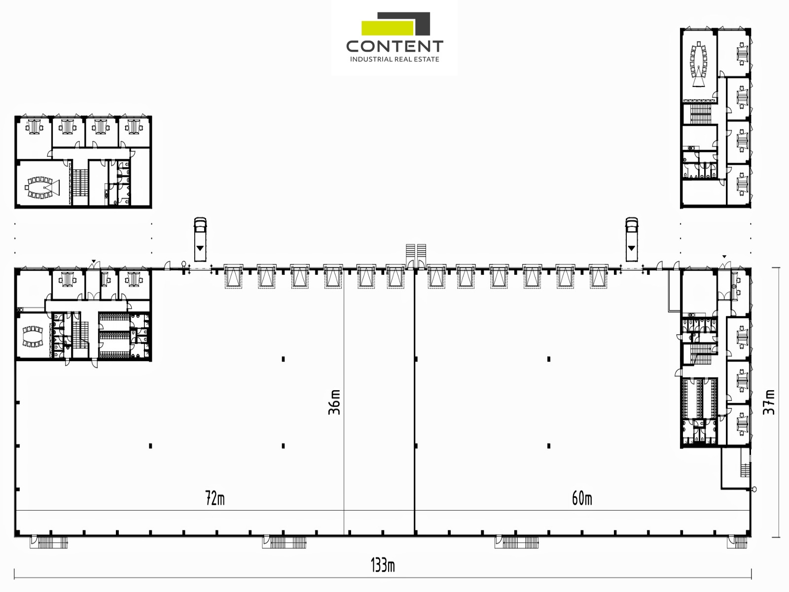
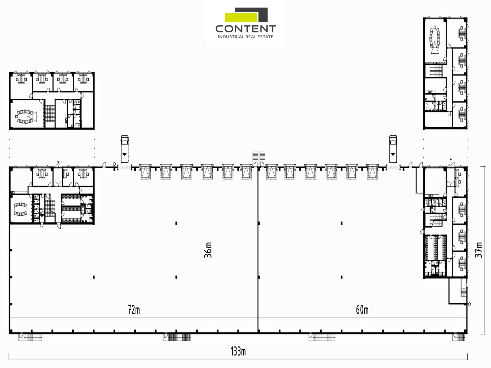
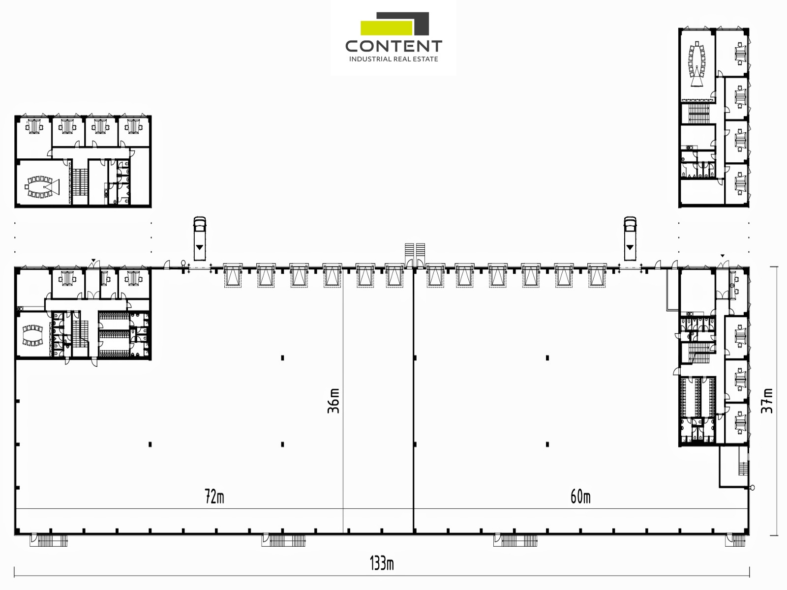
V zastoupení majitele a bez provize nabízíme skladové, výrobní nebo obchodní prostory o celkové výměře 4870 m² v nově vznikajícím areálu Nová Jateční vedle plně obsazeného retail parku Intercora. Areál se nachází vedle frekventované ulice Jateční a zároveň na budoucím východním obchvatu Plzně, což zajišťuje vynikající dopravní dostupnost i obchodní exponovanost.
- 4870 m² dostupných (k dispozici 2Q/2027 – hala B), stavební povolení vydáno
- lze dělit od cca 1100 m²
- výška prostoru 10 m
- kanceláře a sociální zázemí dle požadavků nájemce
- parkovací místa přímo před jednotkou
- bezprašné podlahy s minimální nosností 5 t/m²
- přímý vjezd z úrovně terénu
- hydraulické rampy
- možnost dispozičních úprav podle potřeb klienta
- MHD v docházkové vzdálenosti, v areálu plánované nabíjecí stanice
- příjezd a parkování TIR bezproblémové, manipulační a parkovací plochy
- BREAM Excellent
- možnost instalace FVE
- v areálu jsou k dispozici další skladové a obchodní jednotky o velikosti od 570 m² až po 4870 m²
Cena za pronájem na dotaz.
V případě zájmu nás kontaktujte, rádi zodpovíme Vaše dotazy.
Fotografie jsou ilustrační.
Uživatel serveru RealityMIX.cz (dále jen „Server“) dostupného na internetové adrese (URL) https://www.realitymix.cz, který provozuje společnost DALTEN media s.r.o., se sídlem Na Harfě 916/9a, Praha 9, 190 00, IČO: 271 35 306 (dále jen „Správce“) jako provozovateli tohoto Serveru uděluje svůj výslovný souhlas v souladu s ustanovením § 5 zákona č. 101/2000 Sb. O ochraně osobních údajů a o změně některých zákonů, v platném znění (dále jen „zákon o ochraně osobních údajů“), se zpracováním uživatelem poskytnutých osobních údajů a dalších dat.
Uživatel poskytuje Správci osobní údaje v rozsahu: jméno, příjmení, e-mailová adresa, telefonický kontakt a další data, a to z důvodu projeveného zájmu o nemovitost, kde prostřednictvím služby Serveru Správce osloví Uživatel inzerenta uvedeného v detailu
nemovitosti - CONTENT REALITY s.r.o. (IČ 04001613) se zájmem o jeho služby.
Uživatel tyto osobní údaje poskytuje dobrovolně a bere na vědomí, že součástí služeb Správce, které Správce Uživateli poskytuje, je vyhledání všech Uživateli vyhovujících (dle parametrů - cena, typ nemovitosti, lokalita atd.) nemovitostí. Správce za tímto účelem provozuje aplikace Hlídací pes a newsletter. Tyto služby je možné z každého zaslaného emailu odhlásit. Souhlas se zpracováním osobních údajů Uživatel poskytuje Správci na dobu neurčitou s tím, že svůj udělený souhlas může Uživatel kdykoliv na drese správce info@realitymix.cz odvolat. Správce garantuje Uživateli i další práva uvedené v ustanovení §11 a §21 zákoba č. 101/200 Sb. Ve znění pozdějších předpisů.
Více informací o zpracování údajů získáte zde (realitymix.cz/zasady-ochrany-osobnich-udaju)