Dům v klidné a skutečně „zastrčené“ ulici nabízí více možností.
Jedná se vlastně o polovinu dvojdomu a polořadovou stavbu na konci slepé ulice.
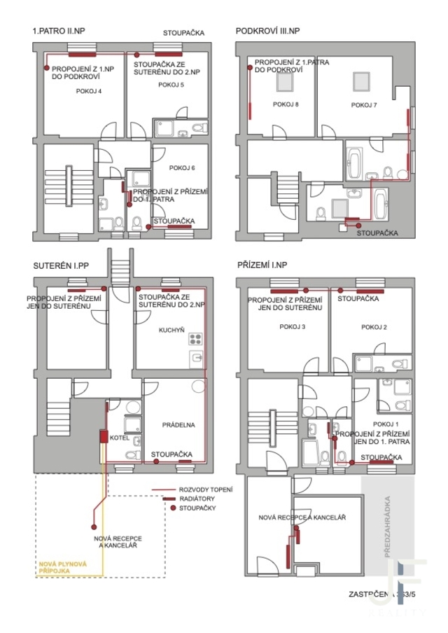
Vnitřní uspořádání je prakticky oddělené centrálním schodištěm, takže dům umožňuje kromě vícegeneračního bydlení i kombinaci bydlení a podnikání, čemuž napomáhá nově přistavěná recepce s anglickým dvorkem v přední části domu. Ačkoli je objekt kolaudovaný jako rodinný dům, v posledních letech byl reálně využíván jako penzion. Současně zde funguje také služba Zásilkovny.
Na třech podlažích byly tři bytové jednotky dispozice 2+1, nyní je zde celkem osm pokojů krátkodobě i dlouhodobě pronajatých vytvořených jednoduchými stavebními úpravami.
V suterénu domu je obytné zázemí pro správce, kotelna a může zde být dostatek skladovacích prostor pro obyvatele domu, nájemce či majitele.
V domě probíhaly průběžné rekonstrukce jednotlivých jednotek i technických rozvodů. Byla realizována dostavba recepce a terasy (aktuálně bez kolaudace) a proběhla rekonstrukce topného systému, jehož základem je nový výkonný plynový kotel.
Přední strana domu ja zateplená.
Celkově je bydlení vhodné k modernizaci a rekonstrukci v rámci, které se opět vrátí stav se třemi jednotkami, které mohou být 2+kk nebo i 3+kk s jednou koupelnou.
Objekt je však možné užívat i v současném stavu.
Recepce byla dostavěna letos a vyžaduje drobné dokončovací práce, následně kolaudaci. k recepci náleží ještě malá kancelář a anglický dvorek před domem.
Za domem se nachází dvorek s pergolou a plechovým zahradním domkem. Potenciál je využít prostor pro parkování 3-4 vozů.
Lokalita má dobrou dopravní dostupnost i kompletní občanskou vybavenost.
Zastávka metra Roztyly je 15 minut pěší chůzí, nejlepší ocbhodní centrum v Praze, OC Chodov je 20 minut pěší chůzí nebo 4 minuty autobusem...
Energetický štítek je v přípravě...
Pomocí naší hypoteční kalkulačky si můžete udělat orientační představu o výši měsíčních splátek hypotéky. O vše ostatní se pak postaráme my ve spolupráci s našimi obchodními partnery.
84 902 Kč
* Odhadovaná měsíční splátka vychází z výše úvěru Kč s pevnou úrokovou sazbou % po celou dobu trvání úvěru.
Uživatel serveru RealityMIX.cz (dále jen „Server“) dostupného na internetové adrese (URL) https://www.realitymix.cz, který provozuje společnost DALTEN media s.r.o., se sídlem Na Harfě 916/9a, Praha 9, 190 00, IČO: 271 35 306 (dále jen „Správce“) jako provozovateli tohoto Serveru uděluje svůj výslovný souhlas v souladu s ustanovením § 5 zákona č. 101/2000 Sb. O ochraně osobních údajů a o změně některých zákonů, v platném znění (dále jen „zákon o ochraně osobních údajů“), se zpracováním uživatelem poskytnutých osobních údajů a dalších dat.
Uživatel poskytuje Správci osobní údaje v rozsahu: jméno, příjmení, e-mailová adresa, telefonický kontakt a další data, a to z důvodu projeveného zájmu o nemovitost, kde prostřednictvím služby Serveru Správce osloví Uživatel inzerenta uvedeného v detailu
nemovitosti - Frydrych reality (IČ 14376571) se zájmem o jeho služby.
Uživatel tyto osobní údaje poskytuje dobrovolně a bere na vědomí, že součástí služeb Správce, které Správce Uživateli poskytuje, je vyhledání všech Uživateli vyhovujících (dle parametrů - cena, typ nemovitosti, lokalita atd.) nemovitostí. Správce za tímto účelem provozuje aplikace Hlídací pes a newsletter. Tyto služby je možné z každého zaslaného emailu odhlásit. Souhlas se zpracováním osobních údajů Uživatel poskytuje Správci na dobu neurčitou s tím, že svůj udělený souhlas může Uživatel kdykoliv na drese správce info@realitymix.cz odvolat. Správce garantuje Uživateli i další práva uvedené v ustanovení §11 a §21 zákoba č. 101/200 Sb. Ve znění pozdějších předpisů.
Více informací o zpracování údajů získáte zde (realitymix.cz/zasady-ochrany-osobnich-udaju)