Ve výhradním zastoupení majitele Vám nabízím zprostředkování prodeje velmi příjemného bytu s velkým potenciálem o dispozici 3+1, ke kterému náleží zasklená lodžie a komora na patře. Byt je v původním zachovalém stavu a nachází se v 5. nadzemním podlaží zateplené panelové budovy ve vyhledávané městské části Praha – Střížkov v ulici Černého.
✅ Klíčové informace k nemovitosti:
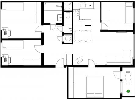
- dispozice 3+1 s velmi praktickým půdorysem
- plocha bytu 60,4 m²
- k bytu náleží prostorná zasklená lodžie o ploše 6,7 m²
- přímo před bytem je komora o ploše 1 m² na ukládání věcí
- možnost propojení obývacího pokoje s kuchyní
- jihozápadní orientace obývací části a kuchyně
- severovýchodní orientace dvou pokojů s klidným okolím
- byt v původním udržovaném stavu s vyzděnou koupelnou a WC
- bez právních vad
- byt je v udržovaném domě, který je zateplený
✅ Klíčové informace k lokalitě:
- mimořádně klidná lokalita se vzrostlou zelení
- bezproblémové parkování před domem
- vynikající občanská vybavenost a dopravní dostupnost
o mateřská i základní škola
o sportovní a dětská hřiště přímo za domem
o hypermartet Kaufland
o poliklinika Prosek, lékárna
o fakultní nemocnice Bulovka
- autobusová a tramvajová zastávka Třebenická je vzdálena pouhých 250 m od budovy
- velmi dobré spojení na metro „C“ Střížkov a Ládví
- ke kvalitě bydlení přispívá i blízkost Ďáblického háje
✅ Důležité informace k prodeji:
- zájemce nehradí provizi RK!
- majitel si vyhrazuje právo výběru nejvýhodnější nabídky v případě více zájemců
- možnost zprostředkování atraktivního financování
Pokud Vás tato nemovitost zaujala, neváhejte mě kontaktovat, rád Vám tento byt s velkým potenciálem osobně představím.
Pomocí naší hypoteční kalkulačky si můžete udělat orientační představu o výši měsíčních splátek hypotéky. O vše ostatní se pak postaráme my ve spolupráci s našimi obchodními partnery.
29 758 Kč
* Odhadovaná měsíční splátka vychází z výše úvěru Kč s pevnou úrokovou sazbou % po celou dobu trvání úvěru.
Prodáváte nemovitost a potřebujete zjistit její reálnou hodnotu?
Uživatel serveru RealityMIX.cz (dále jen „Server“) dostupného na internetové adrese (URL) https://www.realitymix.cz, který provozuje společnost DALTEN media s.r.o., se sídlem Na Harfě 916/9a, Praha 9, 190 00, IČO: 271 35 306 (dále jen „Správce“) jako provozovateli tohoto Serveru uděluje svůj výslovný souhlas v souladu s ustanovením § 5 zákona č. 101/2000 Sb. O ochraně osobních údajů a o změně některých zákonů, v platném znění (dále jen „zákon o ochraně osobních údajů“), se zpracováním uživatelem poskytnutých osobních údajů a dalších dat.
Uživatel poskytuje Správci osobní údaje v rozsahu: jméno, příjmení, e-mailová adresa, telefonický kontakt a další data, a to z důvodu projeveného zájmu o nemovitost, kde prostřednictvím služby Serveru Správce osloví Uživatel inzerenta uvedeného v detailu
nemovitosti - JUSTO Česká republika (IČ 04419995) se zájmem o jeho služby.
Uživatel tyto osobní údaje poskytuje dobrovolně a bere na vědomí, že součástí služeb Správce, které Správce Uživateli poskytuje, je vyhledání všech Uživateli vyhovujících (dle parametrů - cena, typ nemovitosti, lokalita atd.) nemovitostí. Správce za tímto účelem provozuje aplikace Hlídací pes a newsletter. Tyto služby je možné z každého zaslaného emailu odhlásit. Souhlas se zpracováním osobních údajů Uživatel poskytuje Správci na dobu neurčitou s tím, že svůj udělený souhlas může Uživatel kdykoliv na drese správce info@realitymix.cz odvolat. Správce garantuje Uživateli i další práva uvedené v ustanovení §11 a §21 zákoba č. 101/200 Sb. Ve znění pozdějších předpisů.
Více informací o zpracování údajů získáte zde (realitymix.cz/zasady-ochrany-osobnich-udaju)