Prodej byt 3 + kk, 53㎡|Hlavní město Praha, Praha, Praha 3, Žižkov, Buková 2554/6, 13000
Přímý majitel nabízí k prodeji světlý byt 3+kk o celkové ploše 54 m², který se nachází v 3. nadzemním podlaží zrekonstruovaného a zatepleného domu v oblíbené rezidenční lokalitě Prahy 3 – Žižkov, v ulici Bukova. Byt je situován v klidném prostředí obklopeném zelení, které zajišťuje příjemné a pohodové bydlení. Lokalita nabízí ideální kombinaci městského komfortu a přírody s výbornou dostupností do centra Prahy. Byt je vhodný pro jednotlivce, pár nebo jako investiční příležitost k pronájmu.
Žižkov patří mezi vyhledávané části Prahy díky kompletní občanské vybavenosti a skvělé dopravní dostupnosti. Tramvajová zastávka Kněžská louka i autobusová zastávka Habrová se nacházejí jen pár minut chůze od domu a zajišťují rychlé spojení na metro i do centra města. V okolí je k dispozici veškerá infrastruktura – školy, školky, obchody, restaurace, kavárny, knihovna i další služby. Nedaleko se nachází také sportovní a rekreační areál Pražačka. Pro odpočinek i sport jsou ideální blízké parky Židovské pece a Malešický park.
Byt právě prošel kompletní a kvalitní rekonstrukcí, která zahrnuje nové rozvody elektřiny, vody a odpadů, nové podlahy, moderní obklady a dlažbu značky Marazzi, koupelnu se sprchovým koutem a sanitou Grohe a také novou kuchyňskou linku se spotřebiči Gorenje, na kterou je poskytována prodloužená záruka pět let.
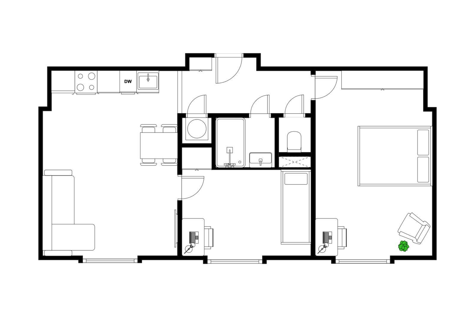
Dispozičně byt nabízí obývací pokoj s kuchyňským koutem, dva samostatné pokoje vhodné jako ložnice a dětský pokoj nebo pracovna, prostornou vstupní chodbu a moderní koupelnu s toaletou. K bytu náleží sklepní kóje o velikosti 2 m².
Vytápění je centrální dálkové. Kompletní měsíční poplatky do SVJ vč. fondu oprav činí 4.478 ,- Kč.
Byt je prodáván přímo majitelem, bez provize za zprostředkování. Cena zahrnuje kompletní právní servis včetně přípravy kupní smlouvy a advokátní úschovy.
V případě zájmu si neváhejte prohlédnout dům pomocí virtuální prohlídky.
Pro více informací a domluvení osobní prohlídky nás neváhejte kdykoliv kontaktovat.
Cena:
8 699 900 Kč
Poznámka:
Finální cena. Neplatíte žádnou provizi. Cena vč. právního servisu.
Pomocí naší hypoteční kalkulačky si můžete udělat orientační představu o výši měsíčních splátek hypotéky. O vše ostatní se pak postaráme my ve spolupráci s našimi obchodními partnery.
35 224 Kč
* Odhadovaná měsíční splátka vychází z výše úvěru Kč s pevnou úrokovou sazbou % po celou dobu trvání úvěru.
Prodáváte nemovitost a potřebujete zjistit její reálnou hodnotu?
Uživatel serveru RealityMIX.cz (dále jen „Server“) dostupného na internetové adrese (URL) https://www.realitymix.cz, který provozuje společnost DALTEN media s.r.o., se sídlem Na Harfě 916/9a, Praha 9, 190 00, IČO: 271 35 306 (dále jen „Správce“) jako provozovateli tohoto Serveru uděluje svůj výslovný souhlas v souladu s ustanovením § 5 zákona č. 101/2000 Sb. O ochraně osobních údajů a o změně některých zákonů, v platném znění (dále jen „zákon o ochraně osobních údajů“), se zpracováním uživatelem poskytnutých osobních údajů a dalších dat.
Uživatel poskytuje Správci osobní údaje v rozsahu: jméno, příjmení, e-mailová adresa, telefonický kontakt a další data, a to z důvodu projeveného zájmu o nemovitost, kde prostřednictvím služby Serveru Správce osloví Uživatel inzerenta uvedeného v detailu
nemovitosti - NOVA ET VETERA, s.r.o. (IČ 09492615 ) se zájmem o jeho služby.
Uživatel tyto osobní údaje poskytuje dobrovolně a bere na vědomí, že součástí služeb Správce, které Správce Uživateli poskytuje, je vyhledání všech Uživateli vyhovujících (dle parametrů - cena, typ nemovitosti, lokalita atd.) nemovitostí. Správce za tímto účelem provozuje aplikace Hlídací pes a newsletter. Tyto služby je možné z každého zaslaného emailu odhlásit. Souhlas se zpracováním osobních údajů Uživatel poskytuje Správci na dobu neurčitou s tím, že svůj udělený souhlas může Uživatel kdykoliv na drese správce info@realitymix.cz odvolat. Správce garantuje Uživateli i další práva uvedené v ustanovení §11 a §21 zákoba č. 101/200 Sb. Ve znění pozdějších předpisů.
Více informací o zpracování údajů získáte zde (realitymix.cz/zasady-ochrany-osobnich-udaju)