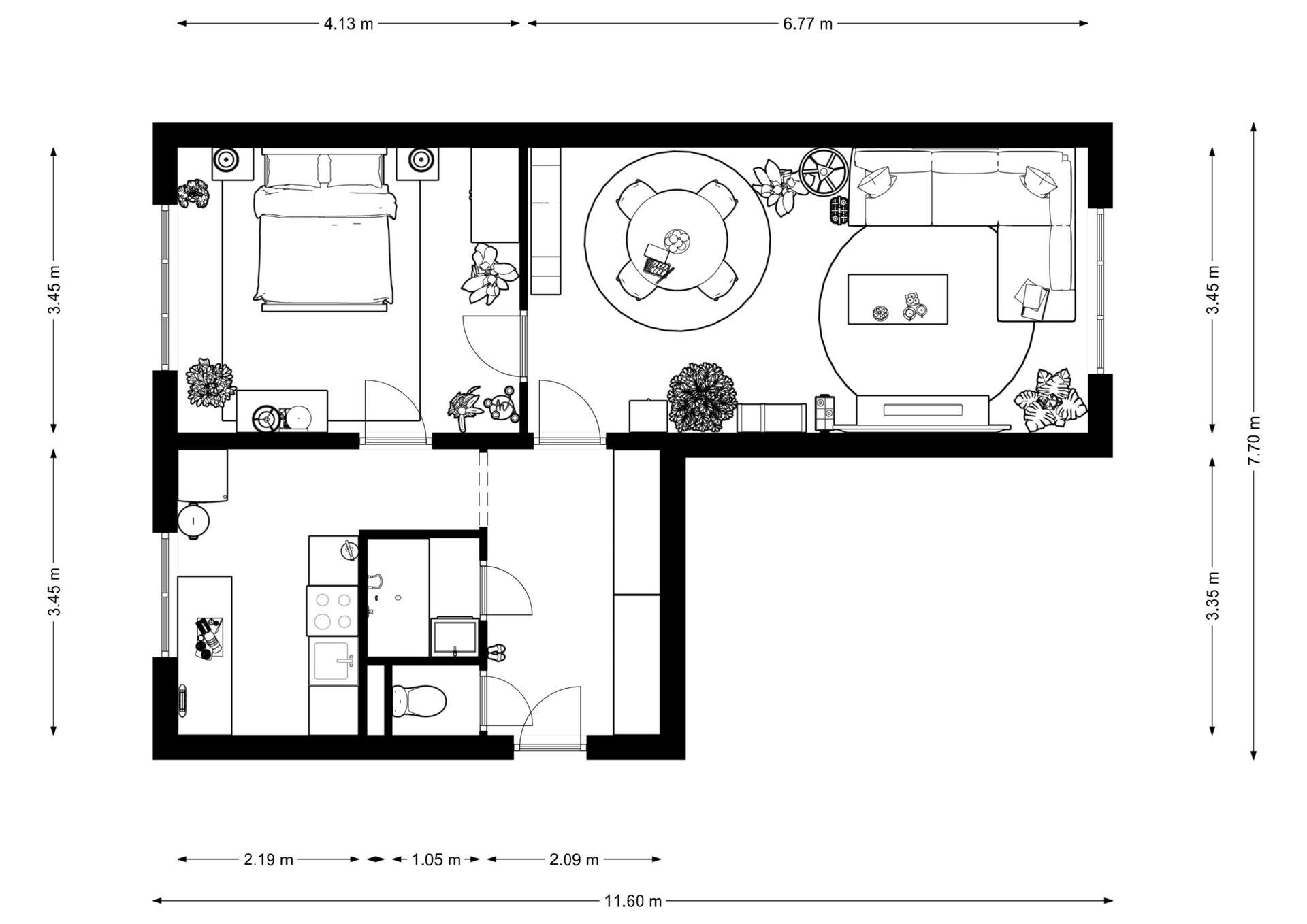
Prodej bytu 2+1, 58 m2, Nad Alejí, Praha 6 - Břevnov
Nabízíme Vám ke koupi velmi hezký byt ve 3.patře bytového domu po revitalizaci, ulice Nad Alejí, Praha 6 - Břevnov. Jedná se o skvělou lokalitu pro trvalé bydlení, která snoubí kompletní síť obchodů a služeb v místě, zeleň a klid. Byt má praktické dispozice o rozloze 58 m2. Kuchyně je samostatná, vybavená kuchyňskou linkou se spotřebiči. Obývací pokoj je prostorný. Dále je k dispozici ložnice s výhledem do zeleně. Koupelna s vanou. Toaleta oddělená. V chodbě bytu jsou vestavné skříně. K bytu náleží sklep v suterénu domu.
Těšíme se na Vás při osobní prohlídce bytu a máme nachystanou dokumentaci k prostudování.
Uživatel serveru RealityMIX.cz (dále jen „Server“) dostupného na internetové adrese (URL) https://www.realitymix.cz, který provozuje společnost DALTEN media s.r.o., se sídlem Na Harfě 916/9a, Praha 9, 190 00, IČO: 271 35 306 (dále jen „Správce“) jako provozovateli tohoto Serveru uděluje svůj výslovný souhlas v souladu s ustanovením § 5 zákona č. 101/2000 Sb. O ochraně osobních údajů a o změně některých zákonů, v platném znění (dále jen „zákon o ochraně osobních údajů“), se zpracováním uživatelem poskytnutých osobních údajů a dalších dat.
Uživatel poskytuje Správci osobní údaje v rozsahu: jméno, příjmení, e-mailová adresa, telefonický kontakt a další data, a to z důvodu projeveného zájmu o nemovitost, kde prostřednictvím služby Serveru Správce osloví Uživatel inzerenta uvedeného v detailu
nemovitosti - Zuzana Lang s.r.o. (IČ 06284981) se zájmem o jeho služby.
Uživatel tyto osobní údaje poskytuje dobrovolně a bere na vědomí, že součástí služeb Správce, které Správce Uživateli poskytuje, je vyhledání všech Uživateli vyhovujících (dle parametrů - cena, typ nemovitosti, lokalita atd.) nemovitostí. Správce za tímto účelem provozuje aplikace Hlídací pes a newsletter. Tyto služby je možné z každého zaslaného emailu odhlásit. Souhlas se zpracováním osobních údajů Uživatel poskytuje Správci na dobu neurčitou s tím, že svůj udělený souhlas může Uživatel kdykoliv na drese správce info@realitymix.cz odvolat. Správce garantuje Uživateli i další práva uvedené v ustanovení §11 a §21 zákoba č. 101/200 Sb. Ve znění pozdějších předpisů.
Více informací o zpracování údajů získáte zde (realitymix.cz/zasady-ochrany-osobnich-udaju)