Vlastnictví - Osobní
Dispozice - 2+kk
Plocha bytu - 49,8 m2
Podlaží - 4.
Sklep - Ano, viz foto
Vytápění - Nové el. akumulační radiátory, wifi ovládání
Teplá voda - El. bojler
Okna - Plastová, izol. Dvojsklo
Elektroměr - 3 fáze, 3x25A
Rozvody el. - Měď, nedávná rekonstrukce
Balkon - Ano, do prostoru mezi domy
Výtah - Ano, do mezipodesty
Přílohy k prohlídce - bezdlužnost SVJ, PENB, prohlášení vlastníka, list vlastnictví, návrh kupní smlouvy, skutečné zaměření bytu s dispoziční studií, zápis ze shromáždění SVJ za rok 2025, aktuální předpis záloh
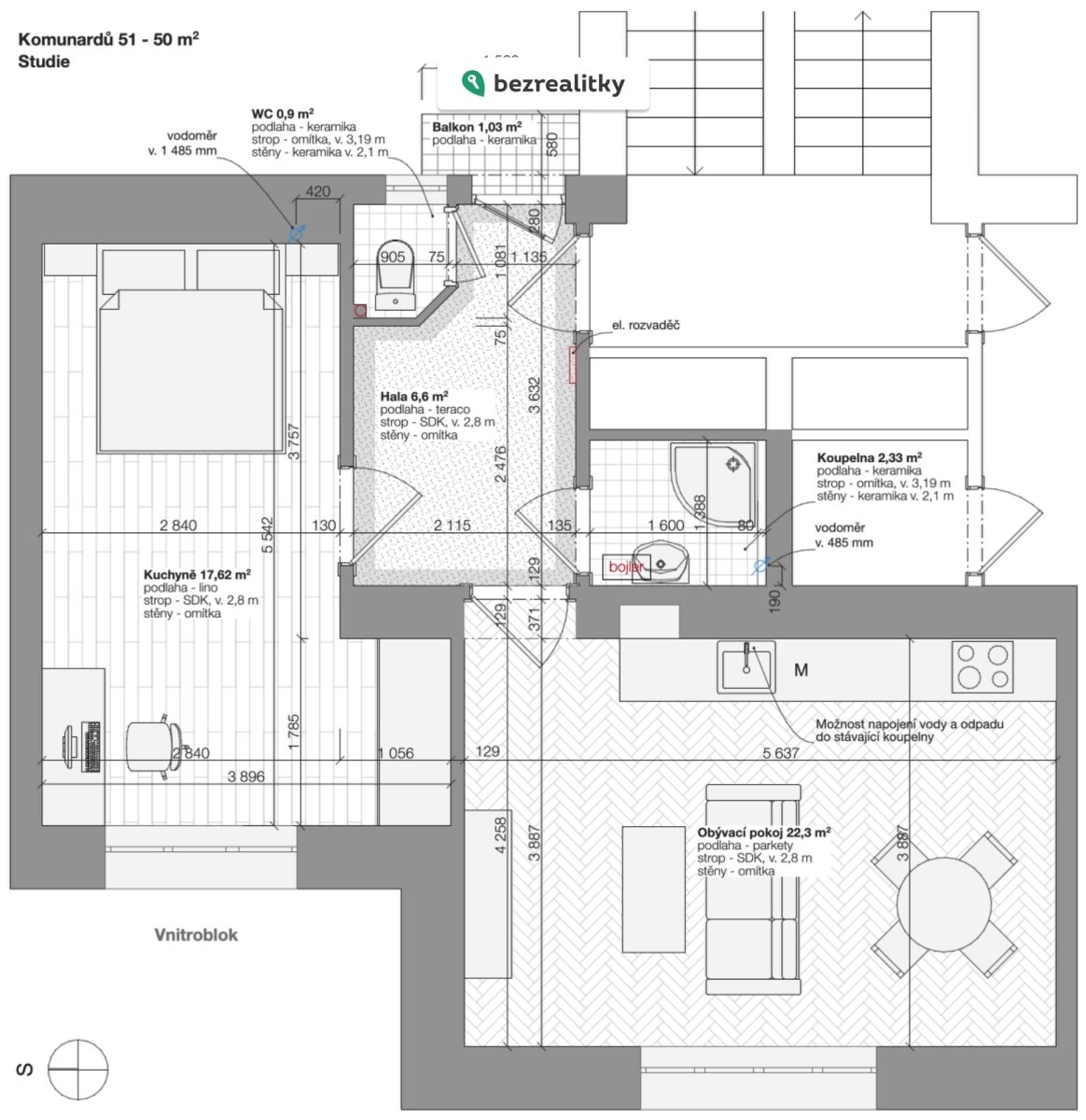
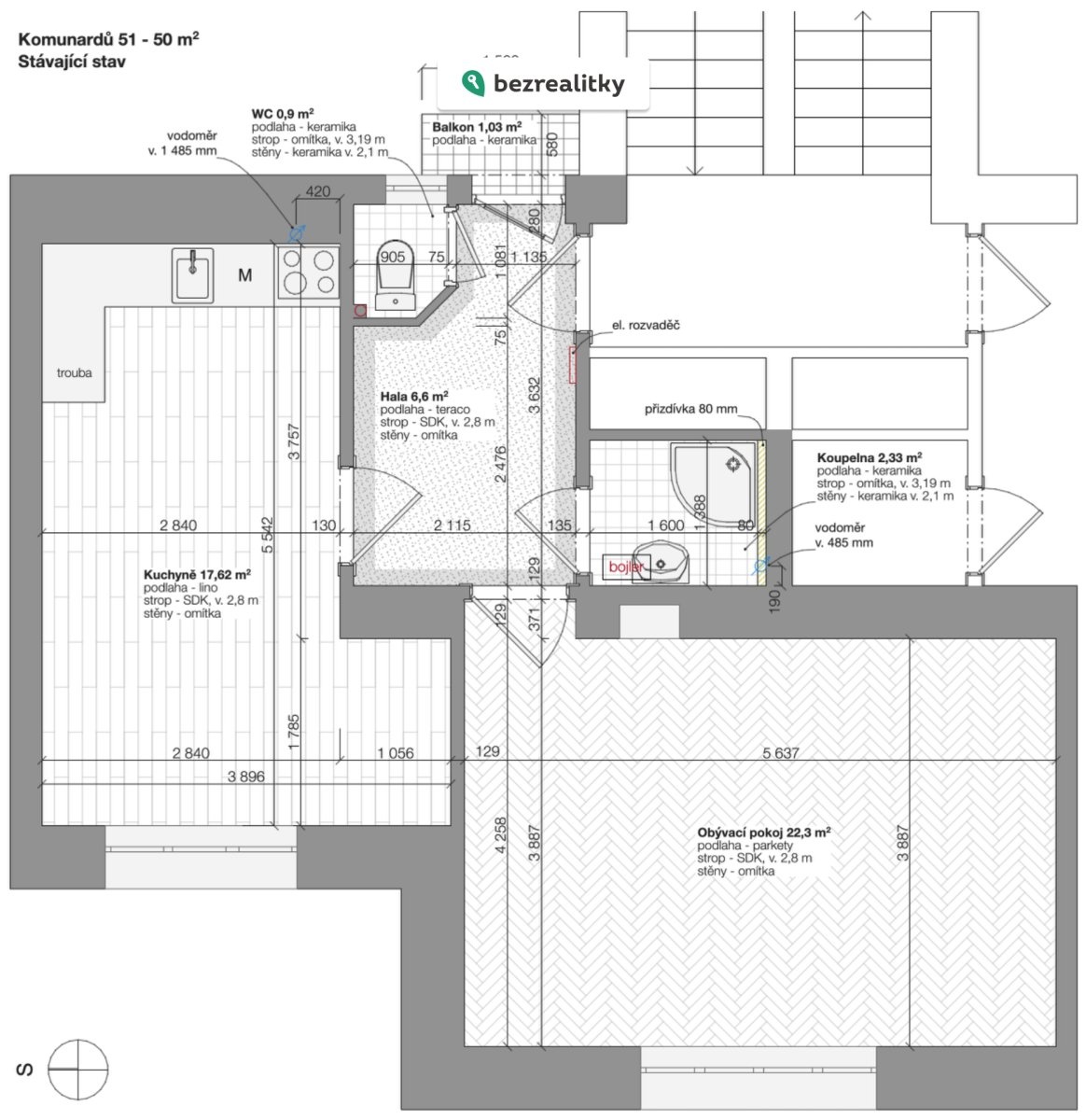
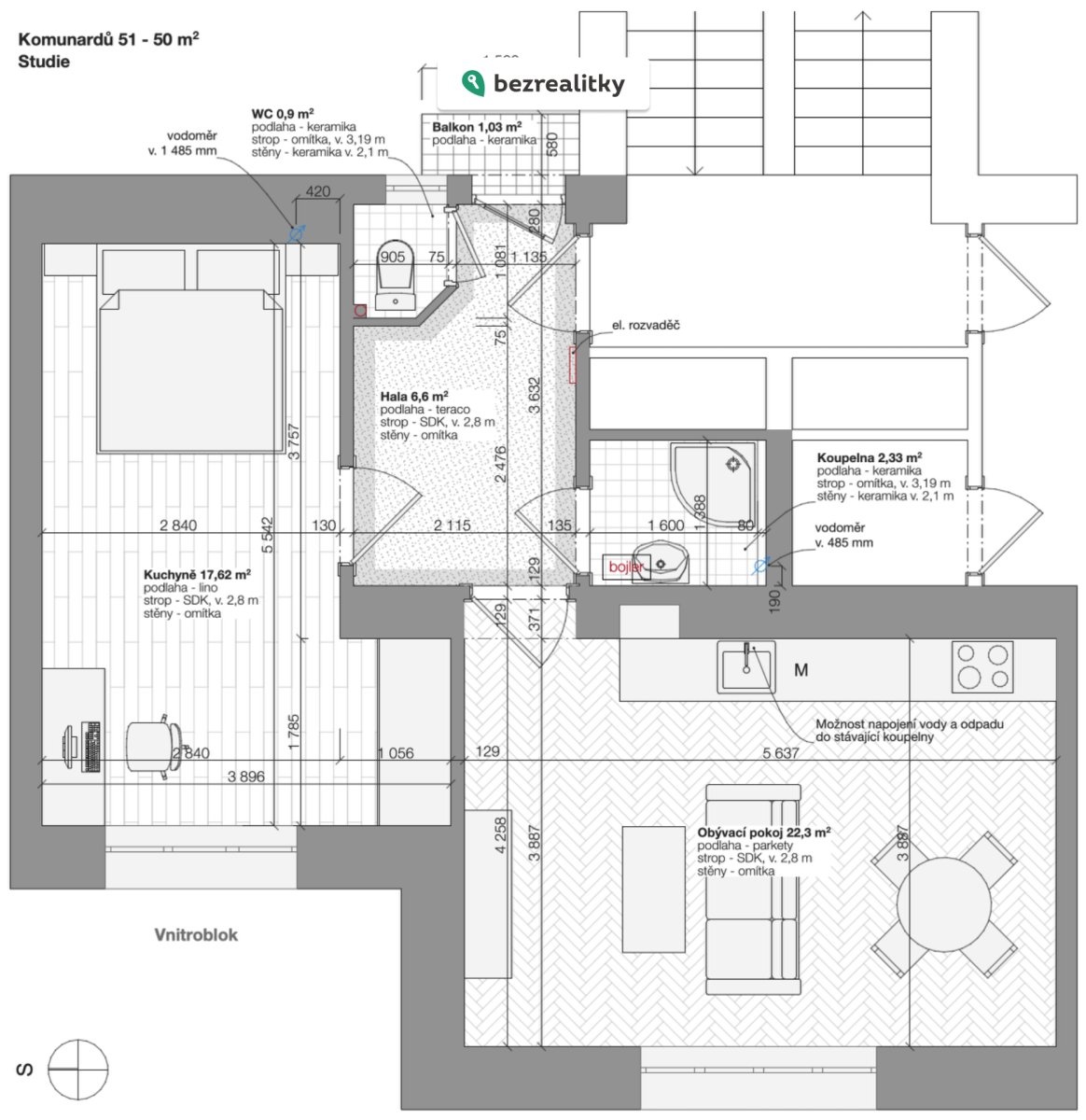
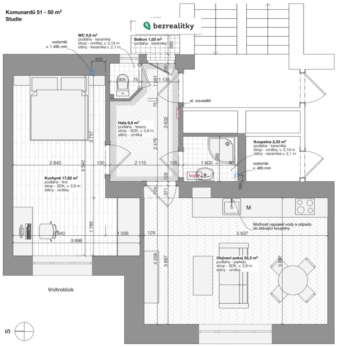
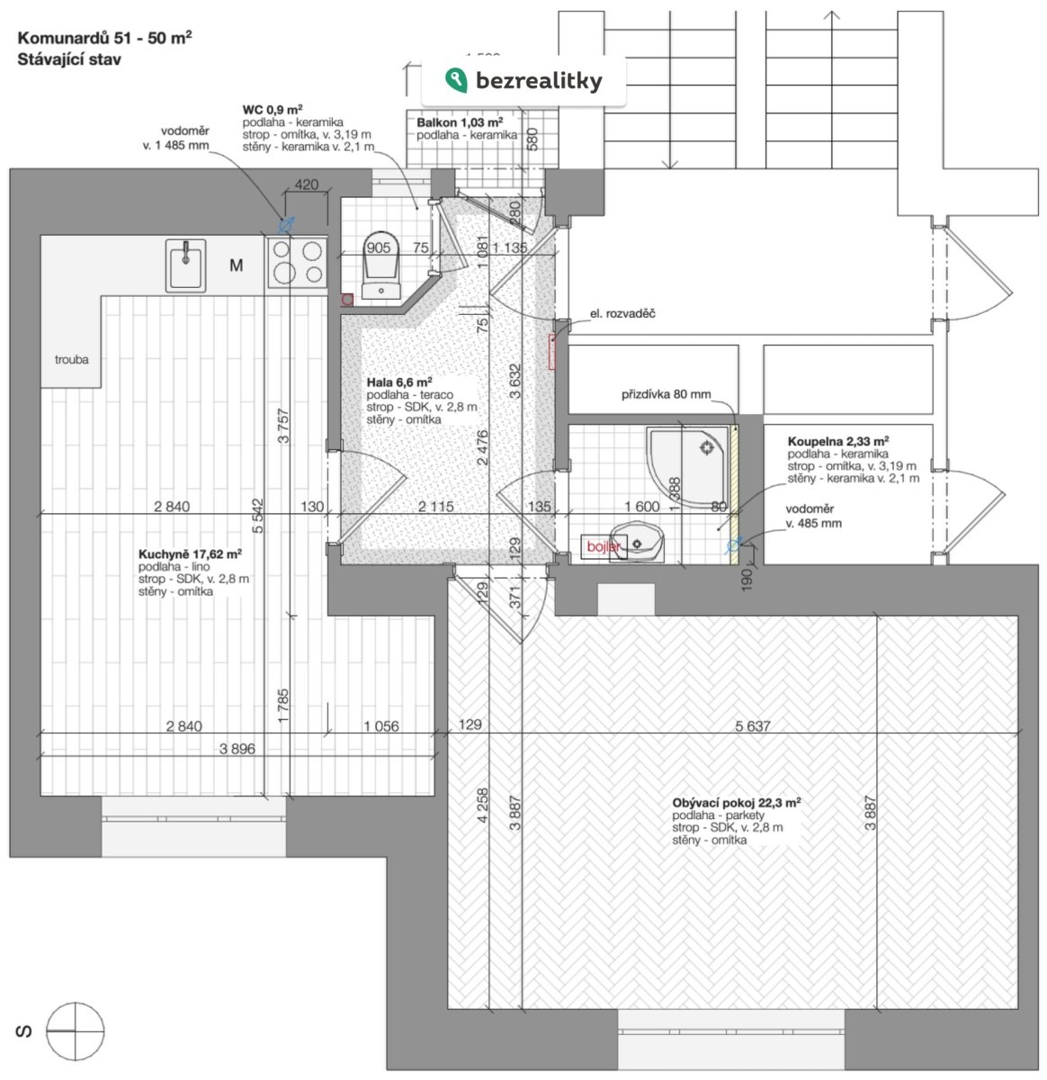
Byt je velmi světlý. Obě obytné místnosti směřují do klidného vnitrobloku se západní orientací. Je po nedávné rekonstrukci (omítky, elektro, kuchyně, okna…) a je možné jeho okamžité užívání. Výšky a rozměry místností, návaznosti dispozice a povrchy jsou popsány v přiložených půdorysech. V obývacím pokoji jsou původní parkety v dobrém stavu. V chodbě je původní teraco, které by chtělo zrenovovat. V kuchyni je stávající linoleum na DTD velkoplošných deskách, které s největší pravděpodobností překrývají původní parkety nebo podlahová prkna - sonda nebyla provedena. Dispozičně je možné přemístit kuchyni do větší obytné místnosti s napojením odpadů a vody do koupelny. Společné prostory domu jsou udržované a čisté s původními povrchy a detaily.
SVJ řádně fungující. Zápis ze shromáždění za rok 2025 k nahlédnutí. Aktuální výše předepsaných záloh je 2 359 Kč (předpis záloh k nahlédnutí)
Jedná se o přímý prodej bez provize realitní kanceláři. Realitní kanceláře prosím nekontaktovat. Tato nemovitost je určena výhradně přímým zájemcům o koupi. Na inzerát můžete také reagovat přímo na webu Bezrealitky: https://www.bezrealitky.cz/nemovitosti-byty-domy/964051-nabidka-prodej-bytu-komunardu-praha
Pomocí naší hypoteční kalkulačky si můžete udělat orientační představu o výši měsíčních splátek hypotéky. O vše ostatní se pak postaráme my ve spolupráci s našimi obchodními partnery.
33 969 Kč
* Odhadovaná měsíční splátka vychází z výše úvěru Kč s pevnou úrokovou sazbou % po celou dobu trvání úvěru.
Prodáváte nemovitost a potřebujete zjistit její reálnou hodnotu?
* Umístění na mapě je na základě GPS informací dodaných realitní kanceláří.
* Pozice na mapě je pouze orientační.
Souhlas se zpracováním osobních údajů
Uživatel serveru RealityMIX.cz (dále jen „Server“) dostupného na internetové adrese (URL) https://www.realitymix.cz, který provozuje společnost DALTEN media s.r.o., se sídlem Na Harfě 916/9a, Praha 9, 190 00, IČO: 271 35 306 (dále jen „Správce“) jako provozovateli tohoto Serveru uděluje svůj výslovný souhlas v souladu s ustanovením § 5 zákona č. 101/2000 Sb. O ochraně osobních údajů a o změně některých zákonů, v platném znění (dále jen „zákon o ochraně osobních údajů“), se zpracováním uživatelem poskytnutých osobních údajů a dalších dat.
Uživatel poskytuje Správci osobní údaje v rozsahu: jméno, příjmení, e-mailová adresa, telefonický kontakt a další data, a to z důvodu projeveného zájmu o nemovitost, kde prostřednictvím služby Serveru Správce osloví Uživatel inzerenta uvedeného v detailu
nemovitosti - Bezrealitky s.r.o. (IČ 08063168) se zájmem o jeho služby.
Uživatel tyto osobní údaje poskytuje dobrovolně a bere na vědomí, že součástí služeb Správce, které Správce Uživateli poskytuje, je vyhledání všech Uživateli vyhovujících (dle parametrů - cena, typ nemovitosti, lokalita atd.) nemovitostí. Správce za tímto účelem provozuje aplikace Hlídací pes a newsletter. Tyto služby je možné z každého zaslaného emailu odhlásit. Souhlas se zpracováním osobních údajů Uživatel poskytuje Správci na dobu neurčitou s tím, že svůj udělený souhlas může Uživatel kdykoliv na drese správce info@realitymix.cz odvolat. Správce garantuje Uživateli i další práva uvedené v ustanovení §11 a §21 zákoba č. 101/200 Sb. Ve znění pozdějších předpisů.
Více informací o zpracování údajů získáte zde (realitymix.cz/zasady-ochrany-osobnich-udaju)