Prodej bytu 2+kk 51 m², V.P. Čkalova, Praha - Bubeneč
Prodej světlého bytu 2+kk o podlahové ploše 51 m2 v centru vyhledávané části Prahy 6 - Bubeneč, ulice V.P. Čkalova.
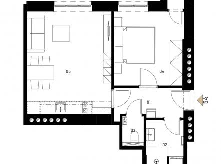
Byt se nachází v šestém nadzemním podlaží cihlového bytového domu a skládá se ze dvou neprůchozích pokojů, kuchyně, koupelny, komory a toalety.
Okna místností jsou orientována do klidného vnitrobloku a z kuchyně, koupelny i toalety vedou okna do světlíku.
K bytu dále náleží prostorná sklepní kóje 7m2, která není započtena do výše uvedené podlahové plochy.
Většina původních prvků (okna, dveře, parkety) jsou v dobrém stavu, koupelna, toaleta a kuchyně jsou po rekonstrukci.
Bytový dům je v udržovaném stavu a v nejbližší době projde celkovou rekonstrukcí, spojenou s realizací půdní vestavby.
Ulice V.P. Čkalova se nachází na rozhraní Bubenče a Dejvic, tedy v samém srdci Prahy 6 a navazuje na ulici Dejvická, kde naleznete veškerou občanskou vybavenost. Stanice Metra A - Hradčanská vzdálena pouhých 400m, stanice Dejvická potom 500m.
Pomocí naší hypoteční kalkulačky si můžete udělat orientační představu o výši měsíčních splátek hypotéky. O vše ostatní se pak postaráme my ve spolupráci s našimi obchodními partnery.
36 034 Kč
* Odhadovaná měsíční splátka vychází z výše úvěru Kč s pevnou úrokovou sazbou % po celou dobu trvání úvěru.
Prodáváte nemovitost a potřebujete zjistit její reálnou hodnotu?
Uživatel serveru RealityMIX.cz (dále jen „Server“) dostupného na internetové adrese (URL) https://www.realitymix.cz, který provozuje společnost DALTEN media s.r.o., se sídlem Na Harfě 916/9a, Praha 9, 190 00, IČO: 271 35 306 (dále jen „Správce“) jako provozovateli tohoto Serveru uděluje svůj výslovný souhlas v souladu s ustanovením § 5 zákona č. 101/2000 Sb. O ochraně osobních údajů a o změně některých zákonů, v platném znění (dále jen „zákon o ochraně osobních údajů“), se zpracováním uživatelem poskytnutých osobních údajů a dalších dat.
Uživatel poskytuje Správci osobní údaje v rozsahu: jméno, příjmení, e-mailová adresa, telefonický kontakt a další data, a to z důvodu projeveného zájmu o nemovitost, kde prostřednictvím služby Serveru Správce osloví Uživatel inzerenta uvedeného v detailu
nemovitosti - Realitní kancelář JUDr. Josef Křen (IČ 16915488) se zájmem o jeho služby.
Uživatel tyto osobní údaje poskytuje dobrovolně a bere na vědomí, že součástí služeb Správce, které Správce Uživateli poskytuje, je vyhledání všech Uživateli vyhovujících (dle parametrů - cena, typ nemovitosti, lokalita atd.) nemovitostí. Správce za tímto účelem provozuje aplikace Hlídací pes a newsletter. Tyto služby je možné z každého zaslaného emailu odhlásit. Souhlas se zpracováním osobních údajů Uživatel poskytuje Správci na dobu neurčitou s tím, že svůj udělený souhlas může Uživatel kdykoliv na drese správce info@realitymix.cz odvolat. Správce garantuje Uživateli i další práva uvedené v ustanovení §11 a §21 zákoba č. 101/200 Sb. Ve znění pozdějších předpisů.
Více informací o zpracování údajů získáte zde (realitymix.cz/zasady-ochrany-osobnich-udaju)