© 1999–2026 DALTEN media s.r.o.
Za černým mostem, Praha 14
9 499 000 KčZa černým mostem, Praha 14
| Cena: | 9 499 000 Kč |
| Poznámka: | Cena za nemovitost |
| Hypotéka: | od 38 459 Kč/měsíc |
| Datum k nastěhování: | 05.03.2026 |
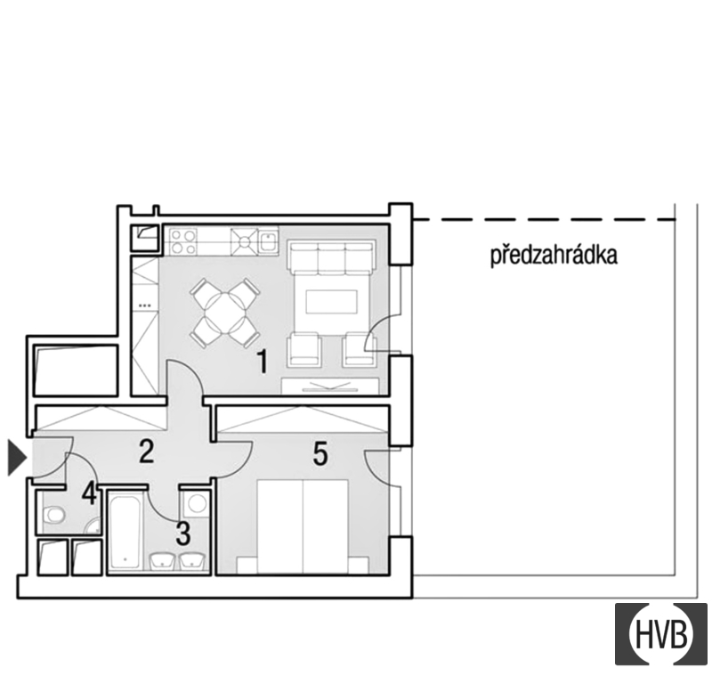
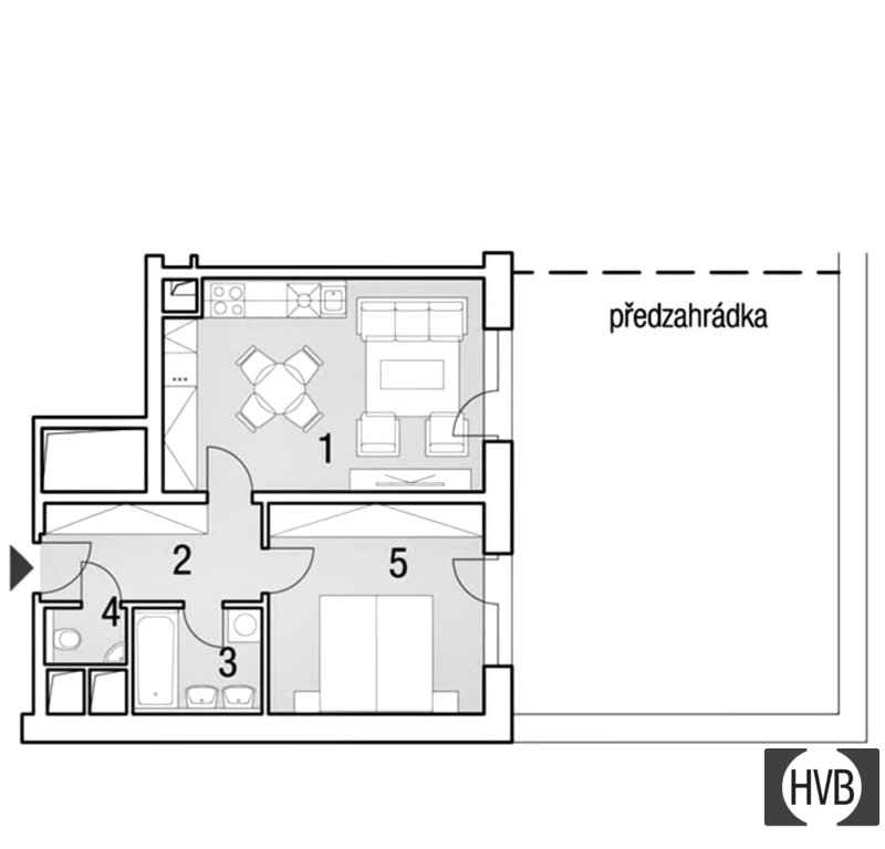
| Dispozice/podlahová plocha: | 2+kk/53 m² |
| Číslo zakázky: | REALITYMIX-20360 |
Pomocí naší hypoteční kalkulačky si můžete udělat orientační představu o výši měsíčních splátek hypotéky. O vše ostatní se pak postaráme my ve spolupráci s našimi obchodními partnery.