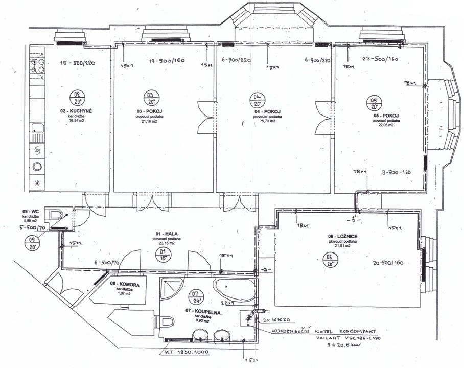
Exkluzivně nabízíme prodej prostorného, světlého bytu 4+1 (150 m2) po rekonstrukci v Praze 5. Byt s nádherným výhledem na Vyšehrad a orientací na jih a východ je situován ve 3.podlaží krásného secesního domu s novou fasádou, střechou a výtahem. Disponuje prostornou halou (23m2), kuchyní (17 m2), obývacím pokojem (27 m2), ložnicí s vestavěnými skříněmi (21 m2), dvěma dalšími pokoji (21 a 22 m2), koupelnou s vanou, sprchovým koutem, dvěma umyvadly a WC (9 m2), technickou místností a samostatným WC s umyvadlem. Všechny pokoje jsou průchozí.
V kuchyni je sporák s indukční sklokeramickou deskou, digestoř, trouba, myčka, lednice s mrazákem a pračka. Plovoucí podlahy a dlažba v kuchyni, v koupelně, WC a u vstupu do bytu. Podlahové vytápění v koupelně a perfektně odizolovaná okna, vytápění plynovým kotlem Buderus umístěným v technické místnosti, bezpečnostní dveře Next, internet. Možnost uskladnění kol, kočárku atd. ve společném sklepě.
Parking před domem (modré zóny). Vynikající dopravní dostupnost - byt je situován v klidné ulici pražského Smíchova mezi stanicemi metra Smíchovské nádraží a Anděl a je ideální rovněž pro reprezentaci a kancelář firmy nebo jako investice.
Pomocí naší hypoteční kalkulačky si můžete udělat orientační představu o výši měsíčních splátek hypotéky. O vše ostatní se pak postaráme my ve spolupráci s našimi obchodními partnery.
88 262 Kč
* Odhadovaná měsíční splátka vychází z výše úvěru Kč s pevnou úrokovou sazbou % po celou dobu trvání úvěru.
Prodáváte nemovitost a potřebujete zjistit její reálnou hodnotu?
Uživatel serveru RealityMIX.cz (dále jen „Server“) dostupného na internetové adrese (URL) https://www.realitymix.cz, který provozuje společnost DALTEN media s.r.o., se sídlem Na Harfě 916/9a, Praha 9, 190 00, IČO: 271 35 306 (dále jen „Správce“) jako provozovateli tohoto Serveru uděluje svůj výslovný souhlas v souladu s ustanovením § 5 zákona č. 101/2000 Sb. O ochraně osobních údajů a o změně některých zákonů, v platném znění (dále jen „zákon o ochraně osobních údajů“), se zpracováním uživatelem poskytnutých osobních údajů a dalších dat.
Uživatel poskytuje Správci osobní údaje v rozsahu: jméno, příjmení, e-mailová adresa, telefonický kontakt a další data, a to z důvodu projeveného zájmu o nemovitost, kde prostřednictvím služby Serveru Správce osloví Uživatel inzerenta uvedeného v detailu
nemovitosti - FARAON reality (IČ 27564096) se zájmem o jeho služby. Tato společnost je součástí seskupení/sítě/franšízového modelu realitních kanceláří, jejich seznam můžete zobrazit kliknutím na tento odkaz.
FARAON reality, s.r.o. - Praha 3 (IČ 27564096) , FARAON reality, s.r.o. - Praha 1 (IČ 27564096) , FARAON reality, s.r.o. - Praha 10 (IČ 27564096) , FARAON reality, s.r.o. - Praha 6 (IČ 27564096) , FARAON reality (IČ 27564096)
Uživatel tyto osobní údaje poskytuje dobrovolně a bere na vědomí, že součástí služeb Správce, které Správce Uživateli poskytuje, je vyhledání všech Uživateli vyhovujících (dle parametrů - cena, typ nemovitosti, lokalita atd.) nemovitostí. Správce za tímto účelem provozuje aplikace Hlídací pes a newsletter. Tyto služby je možné z každého zaslaného emailu odhlásit. Souhlas se zpracováním osobních údajů Uživatel poskytuje Správci na dobu neurčitou s tím, že svůj udělený souhlas může Uživatel kdykoliv na drese správce info@realitymix.cz odvolat. Správce garantuje Uživateli i další práva uvedené v ustanovení §11 a §21 zákoba č. 101/200 Sb. Ve znění pozdějších předpisů.
Více informací o zpracování údajů získáte zde (realitymix.cz/zasady-ochrany-osobnich-udaju)