Ve vyhledávané lokalitě Braníka je nyní k dispozici samostatně stojící dvougenerační rodinný dům. Dům, kde si každý najde svůj prostor. Je obyvatelný ihned, vhodný pro velkou rodinu nebo jako kombinace vlastního bydlení a investičního pronájmu. Každé patro nabízí dostatek soukromí, přičemž zahrada a venkovní prostor zajišťují příjemné zázemí pro rodinný život. Dům se nachází v oblíbené a klidné rezidenční části Prahy 4, kde máte centrum města na dosah a přírodu doslova za rohem.
Dispozice a rozvržení nemovitosti:
Přízemí: Bytová jednotka 2+kk, s novou kuchyňskou linkou a dřevěnou podlahou, předsíň, koupelna se sprchovým koutem, samostatné WC. Tento byt prošel kompletní rekonstrukcí před 8 lety, včetně rozvodů elektřiny, vody a odpadů.
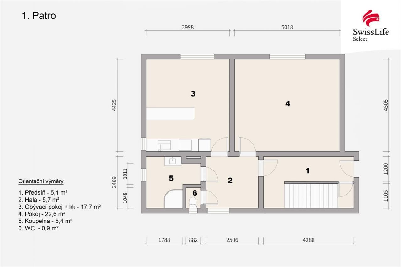
1. patro: Byt 2+kk s předsíní, koupelna s vanou a WC. Obývací pokoj s krbovými kamny je propojen s druhým pokojem, kde je velkorysá kuchyně. Rekonstrukce byla provedena přibližně před 20 lety, také jsou zde nové všechny rozvody. Nyní je byt v dobrém udržovaném stavu.
Podkroví: 3 samostatné pokoje, koupelna se sprchovým koutem a WC, úložný prostor, dřevěné podlahy.
Podsklepení: Sklepní prostory vhodné pro technické zázemí nebo skladování. V současné době je zde dílna, plynový kotel a prádelna se sušárnou.
Krásná zahrada se vzrostlou zelení, záhony a skalkou.
Altán s posezením ideální pro odpočinek nebo grilování. Ze zadní strany altánu je zabudovaná kůlna.
Samostatně stojící garáž na pozemku.
Nemovitost má centrální plynové vytápění, špaletová dřevěná okna, střešní krytinou jsou pálené tašky. Fasáda je v původním stavu, pouze po lokálních opravách, není zateplená, podezdívka je kamenná. Do domu je zaveden i proud 380V. Okna obytných místností směřují na jih.
V blízkosti je kompletní občanská vybavenost: obchody, školky, školy, lékaři, MHD, pošta, kavárny, restaurace.
Lokalita nabízí četná sportovní vyžití, např. plavecký bazén Zelený pruh, cyklostezka podél Kunratického potoka od Krčského lesa až na druhou stranu k Vltavě, po celé délce s mnoha sportovišti a zelení. Pro vycházku láká také přírodní památka Branické skály s Vávrovou vyhlídkou.
Skvělá dostupnost MHD: autobusy navazující na metro C (Kačerov, Budějovická), vlaková stanice Praha-Braník nebo Krč (cca 15 min na Hlavní nádraží) a do budoucna plánovaná stanice metra D, která ještě více zlepší dostupnost a zvýší hodnotu nemovitostí v okolí.
Braník je vyhledávanou oblastí pro svou poklidnou atmosféru, blízkost zeleně a zároveň rychlý přístup do centra města.
Pro domluvení si prohlídky, mě neváhejte kontaktovat.
Těším se na osobní setkání, Vaše realitní makléřka Zdeňka Janočková.
V případě více zájemců o nemovitost, si majitel vyhrazuje právo prodat nemovitost zájemci s nejvyšší nabídkou.
Pomocí naší hypoteční kalkulačky si můžete udělat orientační představu o výši měsíčních splátek hypotéky. O vše ostatní se pak postaráme my ve spolupráci s našimi obchodními partnery.
106 482 Kč
* Odhadovaná měsíční splátka vychází z výše úvěru Kč s pevnou úrokovou sazbou % po celou dobu trvání úvěru.
Uživatel serveru RealityMIX.cz (dále jen „Server“) dostupného na internetové adrese (URL) https://www.realitymix.cz, který provozuje společnost DALTEN media s.r.o., se sídlem Na Harfě 916/9a, Praha 9, 190 00, IČO: 271 35 306 (dále jen „Správce“) jako provozovateli tohoto Serveru uděluje svůj výslovný souhlas v souladu s ustanovením § 5 zákona č. 101/2000 Sb. O ochraně osobních údajů a o změně některých zákonů, v platném znění (dále jen „zákon o ochraně osobních údajů“), se zpracováním uživatelem poskytnutých osobních údajů a dalších dat.
Uživatel poskytuje Správci osobní údaje v rozsahu: jméno, příjmení, e-mailová adresa, telefonický kontakt a další data, a to z důvodu projeveného zájmu o nemovitost, kde prostřednictvím služby Serveru Správce osloví Uživatel inzerenta uvedeného v detailu
nemovitosti - Swiss Life Select Reality (IČ 24260444) se zájmem o jeho služby. Tato společnost je součástí seskupení/sítě/franšízového modelu realitních kanceláří, jejich seznam můžete zobrazit kliknutím na tento odkaz.
Fincentrum a.s. (IČ 24260444) , Swiss Life Select Reality (IČ 24260444)
Uživatel tyto osobní údaje poskytuje dobrovolně a bere na vědomí, že součástí služeb Správce, které Správce Uživateli poskytuje, je vyhledání všech Uživateli vyhovujících (dle parametrů - cena, typ nemovitosti, lokalita atd.) nemovitostí. Správce za tímto účelem provozuje aplikace Hlídací pes a newsletter. Tyto služby je možné z každého zaslaného emailu odhlásit. Souhlas se zpracováním osobních údajů Uživatel poskytuje Správci na dobu neurčitou s tím, že svůj udělený souhlas může Uživatel kdykoliv na drese správce info@realitymix.cz odvolat. Správce garantuje Uživateli i další práva uvedené v ustanovení §11 a §21 zákoba č. 101/200 Sb. Ve znění pozdějších předpisů.
Více informací o zpracování údajů získáte zde (realitymix.cz/zasady-ochrany-osobnich-udaju)