Dovolte mi nabídnout Vám k prodeji nový světlý byt 2+kk v projektu Harfa Living o velikosti 56 m² + balkon 16 m² + uzavíratelná garáž v suterénu domu. Dům je zkolaudován v roce 2026, situován je v klidné lokalitě Prahy 9, Vysočany, ulice Gerstelova. Samotný byt se nachází ve 2. nadzemním podlaží moderního bytového domu.
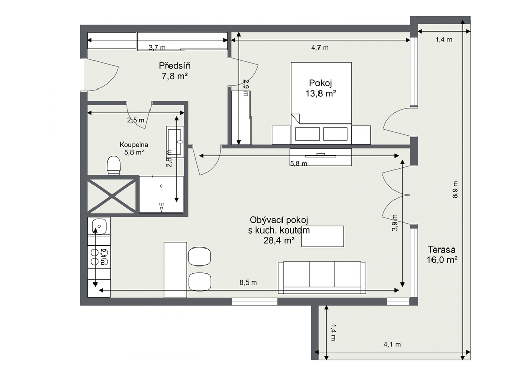
Dispozici bytu si prohlédněte na přiloženém půdorysu. Byt zahrnuje předsíň s prostorem na vestavěnou skříň, pokoj s přípravou na kuchyň se vstupem na balkon (dovolil jsem si navrhnout vizualizaci obývacíiho pokoje, fotografie s vizualizacemi jsou označeny nápisem VIZUALIZACE). Samostatný pokoj se vstupem na prostornou terasu, koupelnu se sprchovým koutem, toaletou a přípravou na pračku. Podlahy tvoří kombinace dlažby a vinilu, okna jsou orientována jih a východ. Byt je připravený k okamžitému nastěhování. K bytu náleží prostorná uzaviratelná garáž 24 m², která splní roli garáže a zároveň nabízí další úložný prostor (policová skříň apod.). Prodávající si u developera zajistil kvalitnější vybavení bytu (koupelna, sanitarní výbava, obklady, podlahy), což navýšilo cenu o cca 480.000,-Kč.
V bezprostřední blízkosti domu se nachází nákupní centrum Galerie Harfa a také OC Fénix, kde je k dispozici široká nabídka obchodů, restaurací a služeb pro každodenní potřeby. V okolí nechybí ani mateřské a základní školy, zdravotnická zařízení či sportoviště, což zajišťuje komfortní městské bydlení bez nutnosti složitého dojíždění.
Bydlení v Harfa Living nabízí také velmi kvalitní dostupnost MHD. Asi 100m od domu je tramvajová zastávka Kabešova - za 7 minut jste na stanici metra Českomoravská na lince =M= B, odkud je centrum Prahy dostupné přibližně do 10 až 15 minut. Za zmínku stojí několik set metrů vzdálená O2 Aréna, která nabízí časté a kvalitní kulturní vyžití.
Byt je možné financovat hypotečním úvěrem, s jehož vyřízením Vám rád pomohu. Byt je k nastěhování okamžitě. V případě zájmu o prohlídku mé neváhejte kdykoliv kontaktovat.
Pomocí naší hypoteční kalkulačky si můžete udělat orientační představu o výši měsíčních splátek hypotéky. O vše ostatní se pak postaráme my ve spolupráci s našimi obchodními partnery.
45 305 Kč
* Odhadovaná měsíční splátka vychází z výše úvěru Kč s pevnou úrokovou sazbou % po celou dobu trvání úvěru.
Prodáváte nemovitost a potřebujete zjistit její reálnou hodnotu?
Uživatel serveru RealityMIX.cz (dále jen „Server“) dostupného na internetové adrese (URL) https://www.realitymix.cz, který provozuje společnost DALTEN media s.r.o., se sídlem Na Harfě 916/9a, Praha 9, 190 00, IČO: 271 35 306 (dále jen „Správce“) jako provozovateli tohoto Serveru uděluje svůj výslovný souhlas v souladu s ustanovením § 5 zákona č. 101/2000 Sb. O ochraně osobních údajů a o změně některých zákonů, v platném znění (dále jen „zákon o ochraně osobních údajů“), se zpracováním uživatelem poskytnutých osobních údajů a dalších dat.
Uživatel poskytuje Správci osobní údaje v rozsahu: jméno, příjmení, e-mailová adresa, telefonický kontakt a další data, a to z důvodu projeveného zájmu o nemovitost, kde prostřednictvím služby Serveru Správce osloví Uživatel inzerenta uvedeného v detailu
nemovitosti - Petr Berka (IČ 71013784) se zájmem o jeho služby.
Uživatel tyto osobní údaje poskytuje dobrovolně a bere na vědomí, že součástí služeb Správce, které Správce Uživateli poskytuje, je vyhledání všech Uživateli vyhovujících (dle parametrů - cena, typ nemovitosti, lokalita atd.) nemovitostí. Správce za tímto účelem provozuje aplikace Hlídací pes a newsletter. Tyto služby je možné z každého zaslaného emailu odhlásit. Souhlas se zpracováním osobních údajů Uživatel poskytuje Správci na dobu neurčitou s tím, že svůj udělený souhlas může Uživatel kdykoliv na drese správce info@realitymix.cz odvolat. Správce garantuje Uživateli i další práva uvedené v ustanovení §11 a §21 zákoba č. 101/200 Sb. Ve znění pozdějších předpisů.
Více informací o zpracování údajů získáte zde (realitymix.cz/zasady-ochrany-osobnich-udaju)