Prodej rodinného domu 5+kk s pozemkem (283 m²), ul. Syrovická, Rajhrad (2)
Nabízím k prodeji rodinný dům (č.2) o dispozici 5+kk, se zastřešeným parkovacím stáním na vlastním pozemku (283 m²), ve městě Rajhrad.
Rodinný dům o podlahové ploše 175 m² je ve fázi výstavby a je jeden ze čtyř nízkoenergetických rodinných domů na ulici Syrovická, v Rajhradě.
Energetické náročnost domu je klasifikována do třídy A - mimořádně úsporné.
VÝSTAVBA ZAHÁJENA 9/2025
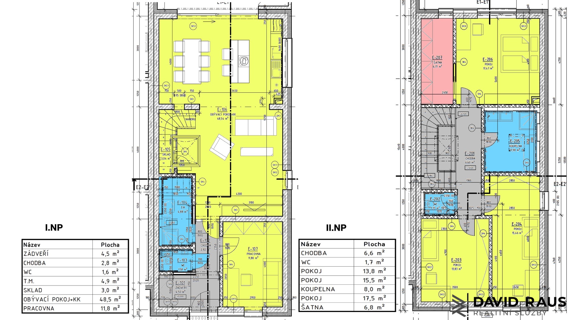
Dispozice domu:
1.NP
Vstupní dveře vedou do zádveří ( 4,5 m²), vedoucí do chodby (2,8 m²) s přístupem na samostatné WC ( 1,6 m²), do technické místnosti ( 4,9 m²), pracovny (11,8m²), skladu (3,0 m²)a otevřeného obývacího pokoje s kuchyňským koutem ( 48,5 m²). Ústředním prvkem propojující jednotlivá patra domu je schodiště z obývacího pokoje.
2.NP
Do druhého patra domu vystoupáme po schodišti na chodbu ( 6,6 m²), kde se nachází tři samostatné pokoje, které mohou sloužit jako samostatné dva dětské pokoje ( 13,8m², 15,5m²) a ložnice (17,5m²) ze které vedou dveře do šatny (6,8m²). K dispozici na patře je prostorná koupelna ( 8,0 m²) a samostatné WC ( 1,7m²).
Základní informace :
- výstavba RD na klíč (5+kk )
- podlahová plocha domu 175 m²
- užitná plocha domu 147 m²
- výměra pozemku 283 m²
- fotovoltaická elektrárna
- podlahové teplovodní topení
- tepelné čerpadlo
- zastřešené parkovací stání
- perfektní občanská vybavenost a dostupnost do města Brna
- atraktivní lokalita pro bydlení
- stavba zahájena 9/2025
Veškerý právní servis zajištěn. Nabízím možnost financování. Pro více informací kontaktujte makléře.
Pomocí naší hypoteční kalkulačky si můžete udělat orientační představu o výši měsíčních splátek hypotéky. O vše ostatní se pak postaráme my ve spolupráci s našimi obchodními partnery.
56 642 Kč
* Odhadovaná měsíční splátka vychází z výše úvěru Kč s pevnou úrokovou sazbou % po celou dobu trvání úvěru.
Uživatel serveru RealityMIX.cz (dále jen „Server“) dostupného na internetové adrese (URL) https://www.realitymix.cz, který provozuje společnost DALTEN media s.r.o., se sídlem Na Harfě 916/9a, Praha 9, 190 00, IČO: 271 35 306 (dále jen „Správce“) jako provozovateli tohoto Serveru uděluje svůj výslovný souhlas v souladu s ustanovením § 5 zákona č. 101/2000 Sb. O ochraně osobních údajů a o změně některých zákonů, v platném znění (dále jen „zákon o ochraně osobních údajů“), se zpracováním uživatelem poskytnutých osobních údajů a dalších dat.
Uživatel poskytuje Správci osobní údaje v rozsahu: jméno, příjmení, e-mailová adresa, telefonický kontakt a další data, a to z důvodu projeveného zájmu o nemovitost, kde prostřednictvím služby Serveru Správce osloví Uživatel inzerenta uvedeného v detailu
nemovitosti - DRRS s.r.o. (IČ 09895035) se zájmem o jeho služby.
Uživatel tyto osobní údaje poskytuje dobrovolně a bere na vědomí, že součástí služeb Správce, které Správce Uživateli poskytuje, je vyhledání všech Uživateli vyhovujících (dle parametrů - cena, typ nemovitosti, lokalita atd.) nemovitostí. Správce za tímto účelem provozuje aplikace Hlídací pes a newsletter. Tyto služby je možné z každého zaslaného emailu odhlásit. Souhlas se zpracováním osobních údajů Uživatel poskytuje Správci na dobu neurčitou s tím, že svůj udělený souhlas může Uživatel kdykoliv na drese správce info@realitymix.cz odvolat. Správce garantuje Uživateli i další práva uvedené v ustanovení §11 a §21 zákoba č. 101/200 Sb. Ve znění pozdějších předpisů.
Více informací o zpracování údajů získáte zde (realitymix.cz/zasady-ochrany-osobnich-udaju)