Na náměstí v Týnci nad Labem nabízím k prodeji dvougenerační rodinný dům se dvěma samostatnými bytovými jednotkami po celkové rekonstrukci.
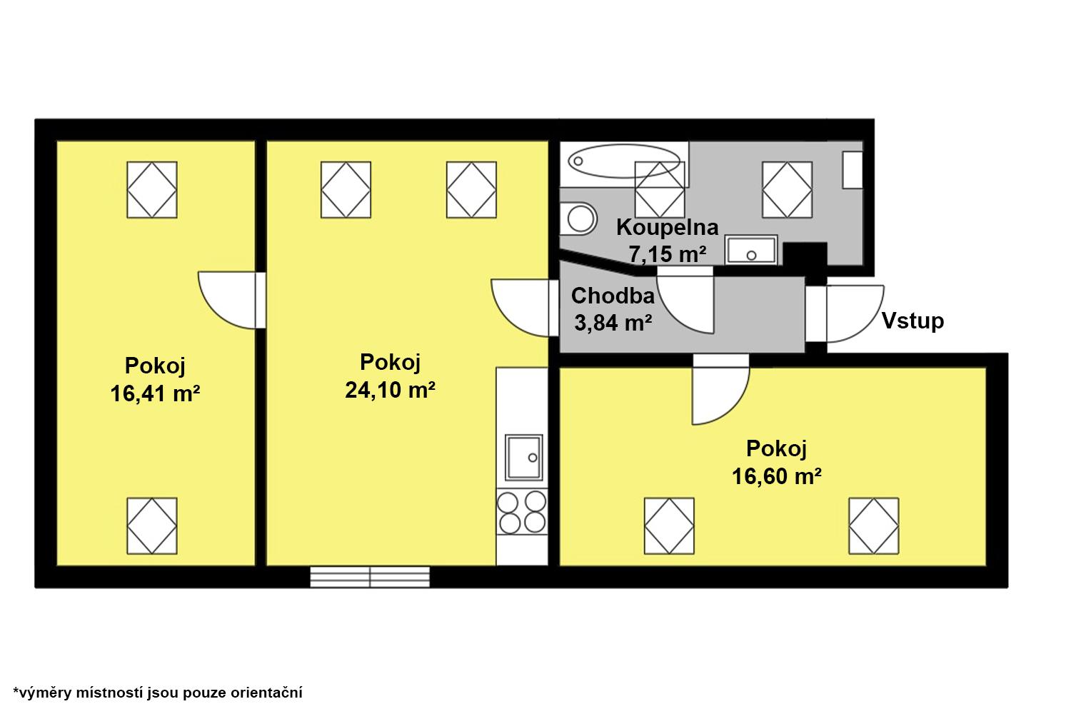
Dům má celkovou užitnou plochu 159 m2 a je rozdělen do dvou podlaží. V každém podlaží se nachází byt o dispozici 3+1. Obě jednotky jsou světlé a prostorné, horní byt navíc působí díky několika střešním oknům velmi vzdušně.
Za domem najdete velkou terasou se vstupem na zahradu 123m2, ideální pro rodinné posezení i odpočinek.
Stavba je cihlová a prošla rozsáhlou rekonstrukcí - nové rozvody elektřiny, nová okna, částečné zateplení. Vytápění je řešeno elektrokotli.
Aktuálně jsou obě bytové jednotky pronajaty s nájemní smlouvou na dobu určitou. Každý z nájemců hradí 30 000 Kč měsíčně včetně energií (čistý nájem 22 tis. Kč), což činí z domu zajímavou investiční příležitost s vysokou návratností.
Týnec nad Labem je plně vybavené město - škola, školka, obchody, restaurace, supermarket i zdravotní péče, vše v docházkové vzdálenosti.
Dům je možné financovat hypotečním úvěrem, s jehož vyřízením vám ráda pomohu.
Pokud hledáte prostorné rodinné bydlení v centru města nebo nemovitost s výborným výnosem z pronájmu, přijďte se podívat. Budu se těšit na prohlídku.
Pomocí naší hypoteční kalkulačky si můžete udělat orientační představu o výši měsíčních splátek hypotéky. O vše ostatní se pak postaráme my ve spolupráci s našimi obchodními partnery.
30 325 Kč
* Odhadovaná měsíční splátka vychází z výše úvěru Kč s pevnou úrokovou sazbou % po celou dobu trvání úvěru.
Uživatel serveru RealityMIX.cz (dále jen „Server“) dostupného na internetové adrese (URL) https://www.realitymix.cz, který provozuje společnost DALTEN media s.r.o., se sídlem Na Harfě 916/9a, Praha 9, 190 00, IČO: 271 35 306 (dále jen „Správce“) jako provozovateli tohoto Serveru uděluje svůj výslovný souhlas v souladu s ustanovením § 5 zákona č. 101/2000 Sb. O ochraně osobních údajů a o změně některých zákonů, v platném znění (dále jen „zákon o ochraně osobních údajů“), se zpracováním uživatelem poskytnutých osobních údajů a dalších dat.
Uživatel poskytuje Správci osobní údaje v rozsahu: jméno, příjmení, e-mailová adresa, telefonický kontakt a další data, a to z důvodu projeveného zájmu o nemovitost, kde prostřednictvím služby Serveru Správce osloví Uživatel inzerenta uvedeného v detailu
nemovitosti - Jana Rušidi - realitní makléřka (IČ 76339157) se zájmem o jeho služby.
Uživatel tyto osobní údaje poskytuje dobrovolně a bere na vědomí, že součástí služeb Správce, které Správce Uživateli poskytuje, je vyhledání všech Uživateli vyhovujících (dle parametrů - cena, typ nemovitosti, lokalita atd.) nemovitostí. Správce za tímto účelem provozuje aplikace Hlídací pes a newsletter. Tyto služby je možné z každého zaslaného emailu odhlásit. Souhlas se zpracováním osobních údajů Uživatel poskytuje Správci na dobu neurčitou s tím, že svůj udělený souhlas může Uživatel kdykoliv na drese správce info@realitymix.cz odvolat. Správce garantuje Uživateli i další práva uvedené v ustanovení §11 a §21 zákoba č. 101/200 Sb. Ve znění pozdějších předpisů.
Více informací o zpracování údajů získáte zde (realitymix.cz/zasady-ochrany-osobnich-udaju)