Prodej novostavby domu 125 m², pozemek 798 m² – Vinařice, Týnec nad Labem
Nabízíme moderní dvoupatrový rodinný dům o užitné ploše 125 m² na pozemku 798 m². Kvalitní dřevostavba situovaná v klidné rezidenční části Vinařic s výborným spojením do Kolína (15 min) i Prahy (cca 50 min).
Dům bude dodán ve stavu kompletního dokončení – hotové podlahy, obklady, sanita i interiéry.
Kuchyňská linka je ponechána na volbu kupujícího. Standardy zašlu na vyžádání.
Fotografie použité v nabídce pocházejí ze stejné typové stavby realizované v jiné lokalitě.
Proč právě tento dům?
* Dvoupodlažní koncepce = více prostoru a soukromí
* Moderní a úsporná dřevostavba s nízkými náklady
* Klidné prostředí v blízkosti přírody
* Občanská vybavenost v Týnci nad Labem
* Rychlé spojení busem i vlakem
* Ideální volba pro rodinu nebo jako bezpečná investice
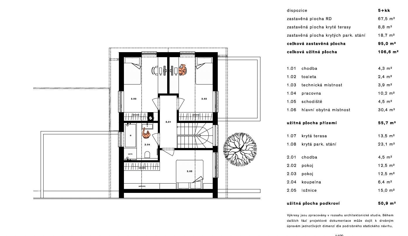
Parametry stavby
* Typ: dvoupodlažní rodinný dům – dřevostavba
* Užitná plocha: 125 m²
* Pozemek: 798 m²
* Dokončení stavby: rok 2026
Platební harmonogram
* Rezervační poplatek
* 20 % z ceny při podpisu Smlouvy o smlouvě budoucí kupní
* Doplatek při kolaudaci a podpisu kupní smlouvy
Standard dokončení
Kompletně hotové interiéry včetně podlah, obkladů a sanit. Kuchyň řeší kupující dle svého vkusu.
Zavolejte pro více informací – rád pošlu standardy, vizualizace i detailní podklady.
Pomocí naší hypoteční kalkulačky si můžete udělat orientační představu o výši měsíčních splátek hypotéky. O vše ostatní se pak postaráme my ve spolupráci s našimi obchodními partnery.
36 034 Kč
* Odhadovaná měsíční splátka vychází z výše úvěru Kč s pevnou úrokovou sazbou % po celou dobu trvání úvěru.
Uživatel serveru RealityMIX.cz (dále jen „Server“) dostupného na internetové adrese (URL) https://www.realitymix.cz, který provozuje společnost DALTEN media s.r.o., se sídlem Na Harfě 916/9a, Praha 9, 190 00, IČO: 271 35 306 (dále jen „Správce“) jako provozovateli tohoto Serveru uděluje svůj výslovný souhlas v souladu s ustanovením § 5 zákona č. 101/2000 Sb. O ochraně osobních údajů a o změně některých zákonů, v platném znění (dále jen „zákon o ochraně osobních údajů“), se zpracováním uživatelem poskytnutých osobních údajů a dalších dat.
Uživatel poskytuje Správci osobní údaje v rozsahu: jméno, příjmení, e-mailová adresa, telefonický kontakt a další data, a to z důvodu projeveného zájmu o nemovitost, kde prostřednictvím služby Serveru Správce osloví Uživatel inzerenta uvedeného v detailu
nemovitosti - Confin Development (IČ 27376729) se zájmem o jeho služby.
Uživatel tyto osobní údaje poskytuje dobrovolně a bere na vědomí, že součástí služeb Správce, které Správce Uživateli poskytuje, je vyhledání všech Uživateli vyhovujících (dle parametrů - cena, typ nemovitosti, lokalita atd.) nemovitostí. Správce za tímto účelem provozuje aplikace Hlídací pes a newsletter. Tyto služby je možné z každého zaslaného emailu odhlásit. Souhlas se zpracováním osobních údajů Uživatel poskytuje Správci na dobu neurčitou s tím, že svůj udělený souhlas může Uživatel kdykoliv na drese správce info@realitymix.cz odvolat. Správce garantuje Uživateli i další práva uvedené v ustanovení §11 a §21 zákoba č. 101/200 Sb. Ve znění pozdějších předpisů.
Více informací o zpracování údajů získáte zde (realitymix.cz/zasady-ochrany-osobnich-udaju)