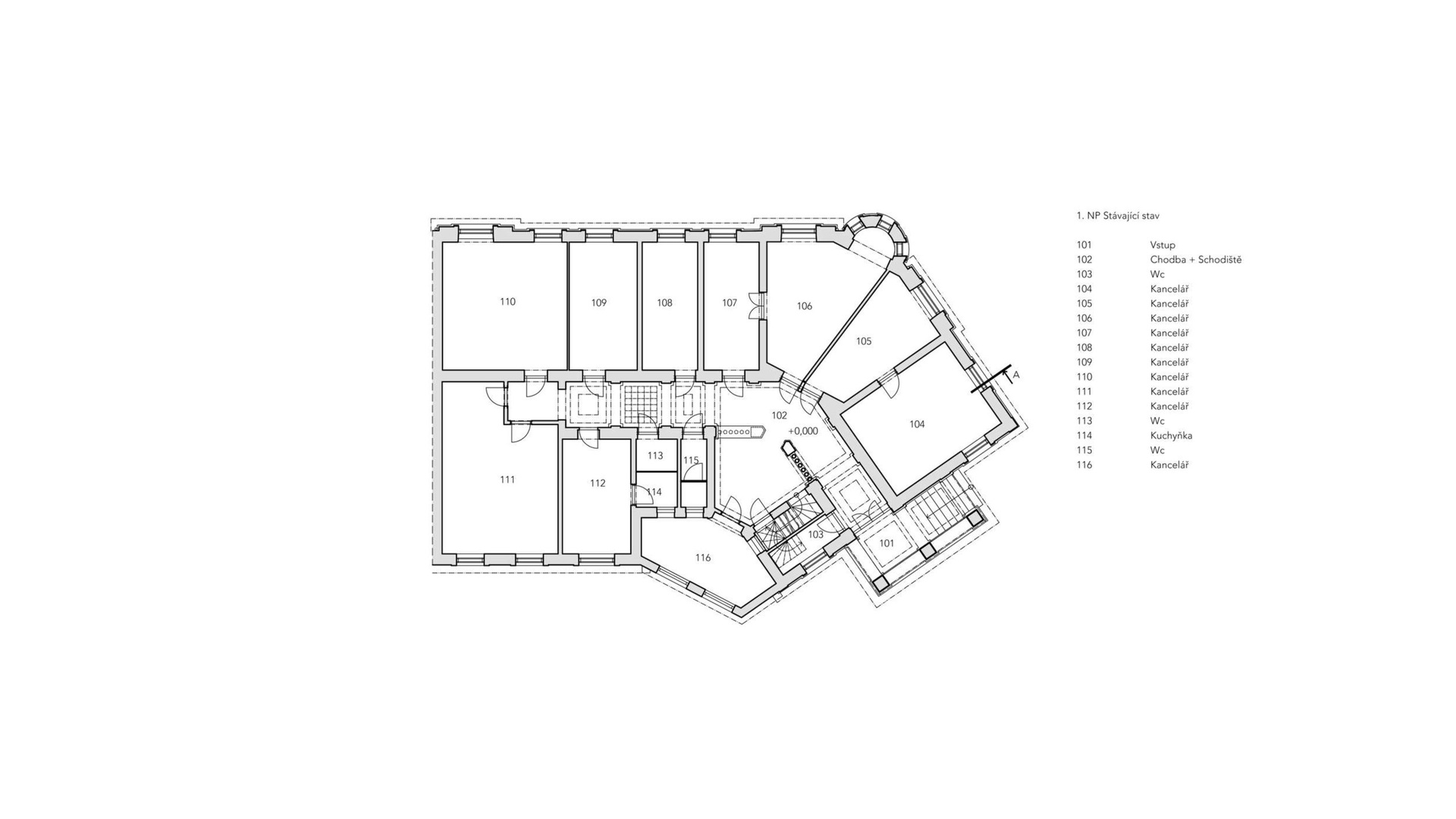
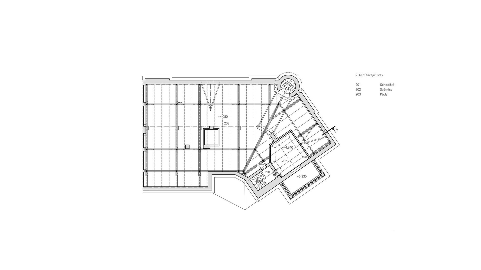
Dovoluji si Vám nabídnout vyškovský skvost mezi nemovitostmi - Skřivánkovu vilu postavenou v letech 1903 – 1904. JUDr. Václav Skřivánek byl nejen starostou města Vyškova, ale také významným komunálním politikem. V 70. letech minulého století byla nemovitost adaptována na administrativní budovu a využívána OPBH. Poslední desetiletí nemovitost chátrá a je určena k rekonstrukci. Současný vlastník má zpracovánu kompletní studii vč. projektové dokumentace přestavby na bytový dům o 6 jednotkách. Již je získáno kladné stanovisko OÚPRu.
Plocha pozemku: 602 m2, z toho zastavěná plocha 338 m2
Budoucí užitná plocha bytových jednotek: 378 m2
Počet parkovacích stání: 6x
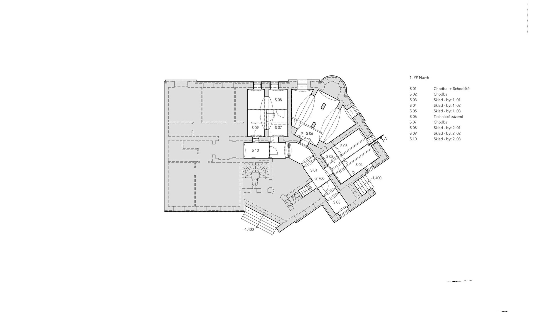
1. PP
- prostory pro technické zázemí objektu, bude zde umístěna technologie pro vytápění a ohřev
Záměrem je kompletní rekonstrukce při znovuobnově a zachování původních architektonických hodnost stavby a doplnění o nové prvky tak, aby bylo možné 121 let starý dům využívat v rámci nynějších standardů.
Bližší informace k nemovitosti vč. projektové dokumentace rád sdělím osobně v naší realitní kanceláři.
Pomocí naší hypoteční kalkulačky si můžete udělat orientační představu o výši měsíčních splátek hypotéky. O vše ostatní se pak postaráme my ve spolupráci s našimi obchodními partnery.
54 658 Kč
* Odhadovaná měsíční splátka vychází z výše úvěru Kč s pevnou úrokovou sazbou % po celou dobu trvání úvěru.
Uživatel serveru RealityMIX.cz (dále jen „Server“) dostupného na internetové adrese (URL) https://www.realitymix.cz, který provozuje společnost DALTEN media s.r.o., se sídlem Na Harfě 916/9a, Praha 9, 190 00, IČO: 271 35 306 (dále jen „Správce“) jako provozovateli tohoto Serveru uděluje svůj výslovný souhlas v souladu s ustanovením § 5 zákona č. 101/2000 Sb. O ochraně osobních údajů a o změně některých zákonů, v platném znění (dále jen „zákon o ochraně osobních údajů“), se zpracováním uživatelem poskytnutých osobních údajů a dalších dat.
Uživatel poskytuje Správci osobní údaje v rozsahu: jméno, příjmení, e-mailová adresa, telefonický kontakt a další data, a to z důvodu projeveného zájmu o nemovitost, kde prostřednictvím služby Serveru Správce osloví Uživatel inzerenta uvedeného v detailu
nemovitosti - REAL SPEKTRUM, a.s. (IČ 25314718) se zájmem o jeho služby.
Uživatel tyto osobní údaje poskytuje dobrovolně a bere na vědomí, že součástí služeb Správce, které Správce Uživateli poskytuje, je vyhledání všech Uživateli vyhovujících (dle parametrů - cena, typ nemovitosti, lokalita atd.) nemovitostí. Správce za tímto účelem provozuje aplikace Hlídací pes a newsletter. Tyto služby je možné z každého zaslaného emailu odhlásit. Souhlas se zpracováním osobních údajů Uživatel poskytuje Správci na dobu neurčitou s tím, že svůj udělený souhlas může Uživatel kdykoliv na drese správce info@realitymix.cz odvolat. Správce garantuje Uživateli i další práva uvedené v ustanovení §11 a §21 zákoba č. 101/200 Sb. Ve znění pozdějších předpisů.
Více informací o zpracování údajů získáte zde (realitymix.cz/zasady-ochrany-osobnich-udaju)