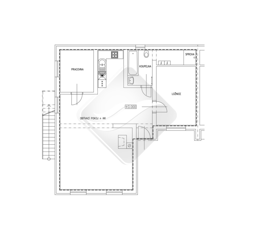
K prodeji nabízíme byt v osobním vlastnictví o dispozici 3+kk, nacházející se v prvním patře rodinného domu v klidné obci Zvole, jen 4 km od Dolních Břežan a 9 km od Prahy 4.
Byt má čistou užitnou plochu 84 m² a je součástí moderně řešeného dvojdomu s důrazem na komfort a energetickou úspornost. Vytápění je zajištěno vodním podlahovým topením ve všech místnostech. K dispozici jsou také vlastní krbové kamna na dřevo, které dodávají interiéru příjemnou atmosféru.
Součástí vybavení je smart WC s funkcemi vyhřívání prkénka, mytí, masáže, sušení a senzorem otvírání krytu, stejně tak smart baterie ve vaně a smart mirror s mnoha užitečnými funkcemi. Tento byt je luxusně a moderně zařízen, čemuž odpovídají i kvalitní materiály, které byly použity na rekonstrukci všech prostor. Dům je napojen na obecní vodovod i kanalizaci.
Celý objekt je postaven z kvalitního zdiva Porotherm (tl. 30 cm) s 10 cm tepelnou izolací. Na střeše domu jsou instalovány fotovoltaické panely o výkonu 10 kW, které spolu s bateriovým úložištěm o kapacitě 10,7 kWh přispívají k nízkým provozním nákladům. K dispozici jsou také dva nabíjecí wallboxy pro elektromobily. Z tohoto důvodu může být tento byt s použitím panelů a kamen v podstatě beznákladový.
K bytu je možné přikoupit garáž se zastavěnou plochou 51 m² a nebytovým prostorem ve druhém podlaží o stejné ploše. Zároveň lze dokoupit pozemek za domem s bazénem o velikosti 8×4 m.
Tato nemovitost je ideální pro ty, kteří hledají klidné bydlení s výbornou dostupností do Prahy a zároveň chtějí využít výhod moderních technologií a energeticky efektivního provozu.
V případě zájmu vás rádi přivítáme na osobní prohlídce.
Pomocí naší hypoteční kalkulačky si můžete udělat orientační představu o výši měsíčních splátek hypotéky. O vše ostatní se pak postaráme my ve spolupráci s našimi obchodními partnery.
28 301 Kč
* Odhadovaná měsíční splátka vychází z výše úvěru Kč s pevnou úrokovou sazbou % po celou dobu trvání úvěru.
Prodáváte nemovitost a potřebujete zjistit její reálnou hodnotu?
Uživatel serveru RealityMIX.cz (dále jen „Server“) dostupného na internetové adrese (URL) https://www.realitymix.cz, který provozuje společnost DALTEN media s.r.o., se sídlem Na Harfě 916/9a, Praha 9, 190 00, IČO: 271 35 306 (dále jen „Správce“) jako provozovateli tohoto Serveru uděluje svůj výslovný souhlas v souladu s ustanovením § 5 zákona č. 101/2000 Sb. O ochraně osobních údajů a o změně některých zákonů, v platném znění (dále jen „zákon o ochraně osobních údajů“), se zpracováním uživatelem poskytnutých osobních údajů a dalších dat.
Uživatel poskytuje Správci osobní údaje v rozsahu: jméno, příjmení, e-mailová adresa, telefonický kontakt a další data, a to z důvodu projeveného zájmu o nemovitost, kde prostřednictvím služby Serveru Správce osloví Uživatel inzerenta uvedeného v detailu
nemovitosti - Duna House (IČ 24682403) se zájmem o jeho služby.
Uživatel tyto osobní údaje poskytuje dobrovolně a bere na vědomí, že součástí služeb Správce, které Správce Uživateli poskytuje, je vyhledání všech Uživateli vyhovujících (dle parametrů - cena, typ nemovitosti, lokalita atd.) nemovitostí. Správce za tímto účelem provozuje aplikace Hlídací pes a newsletter. Tyto služby je možné z každého zaslaného emailu odhlásit. Souhlas se zpracováním osobních údajů Uživatel poskytuje Správci na dobu neurčitou s tím, že svůj udělený souhlas může Uživatel kdykoliv na drese správce info@realitymix.cz odvolat. Správce garantuje Uživateli i další práva uvedené v ustanovení §11 a §21 zákoba č. 101/200 Sb. Ve znění pozdějších předpisů.
Více informací o zpracování údajů získáte zde (realitymix.cz/zasady-ochrany-osobnich-udaju)