RealityMIX.cz

Hl. m. Praha

Jihočeský

Jihomoravský

Karlovarský

Královéhradecký

Liberecký

Moravskoslezský

Olomoucký

Pardubický

Plzeňský

Ústecký

Vysočina

Zlínský

Cena

Plocha

Podlaží

   

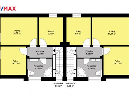
Rodinné domy a vily na pronájem v Kolíně

Nejnovější nabídky rodinných domů k pronájmu v Kolíně. U nás naleznete prostorné rodinné zázemí v příjemné lokalitě s dobrou občanskou vybaveností. Převážná většina domů je připravena k okamžitému pronájmu. Díky nastavení podrobných parametrů můžete vybírat mezi těmi, které odpovídají vaší představě. Fotogalerie nabízí detaily interiéru i okolí domu.

reklama
reklama