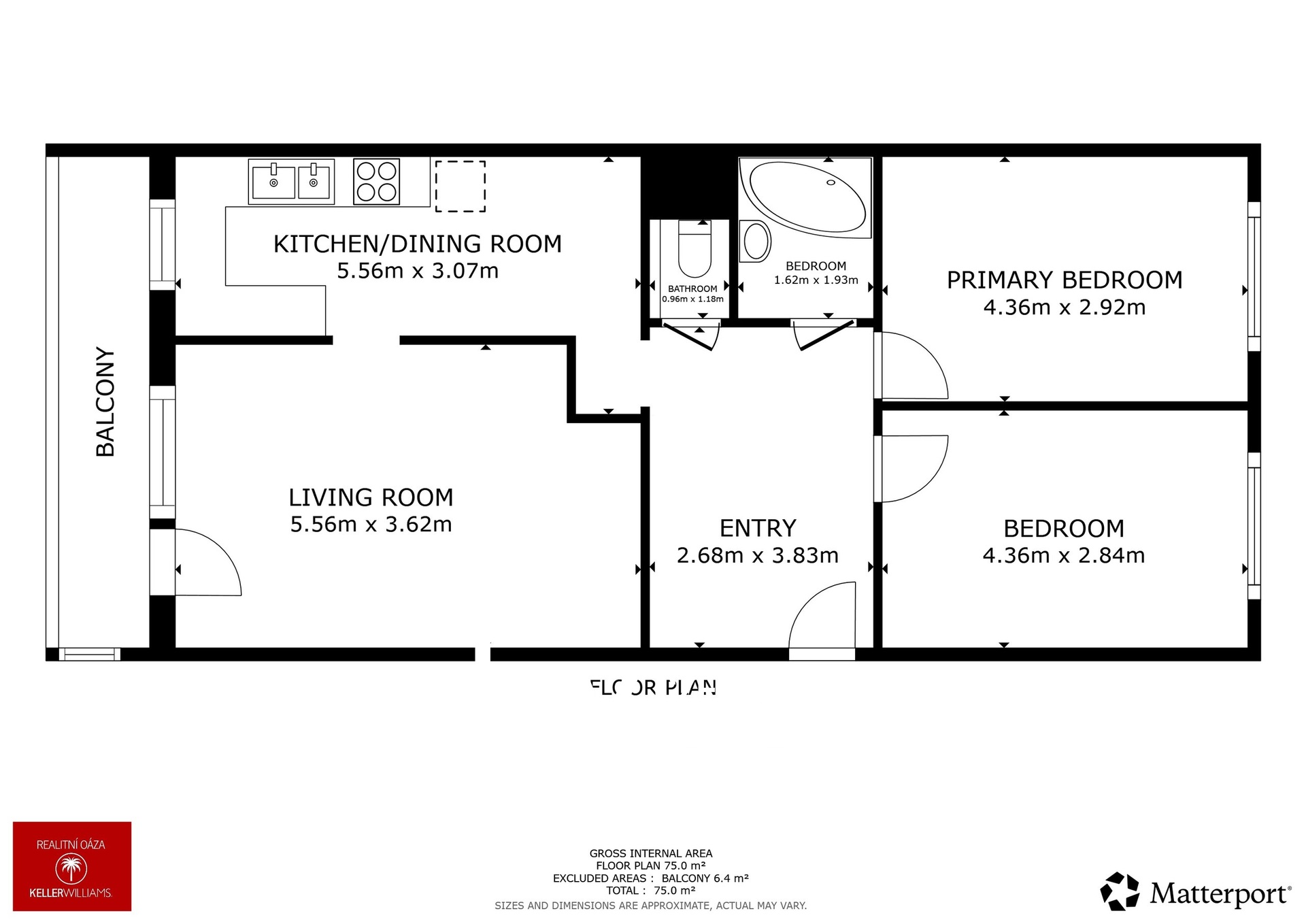
Nabízíme k prodeji krásný prostorný byt 3+1 s lodžií a sklepem o užitné ploše 72 m² (výměra bez lodžie a sklepu) ve vyhledávané lokalitě na ulici Václava Rabase v Kladně. Jedná se o ideální příležitost pro rodiny, páry i investory, kteří hledají kvalitní bydlení s výborným dopravním spojením do Prahy.
Byt je aktuálně družstevní, ale s možností převodu do osobního vlastnictví v řádu týdnů. Máte možnost koupit družstevní podíl nebo po převodu do osobního vlastnictví bytovou jednotku s možností ručení v případě financování hypotečním úvěrem.
Byt se nachází v udržovaném bytovém domě a nabízí optimální dispozici 3+1 s praktickou lodžií a vlastním sklepem. Celková užitná plocha činí 72 m², což poskytuje dostatek prostoru pro pohodlné bydlení. Byt prošel před sedmi lety kompletní rekonstrukcí, díky které se nachází ve výborném stavu. V současné době probíhá modernizace výtahu, která ještě více zvýší komfort bydlení.
Celý bytový dům prošel v nedávné době rozsáhlou revitalizací včetně rekonstrukce střechy, zateplení fasády a kompletní výměny rozvodů, což zaručuje nízké provozní náklady a dlouhodobou hodnotu nemovitosti. Všimněte si energetické náročnosti B, které je výhodou i při případném financování hypotečním úvěrem.
Lokalita nabízí vynikající občanskou vybavenost v bezprostřední blízkosti. V docházkové vzdálenosti najdete kompletní škálu obchodů – od menších prodejen s denní potřebou až po větší supermarkety jako Tesco, Albert a Lidl a obchodní centrum Central Kladno (110 obchodů těch nejoblíbenějších světových značek stejně jako kavárny, lékárna, kadeřnictví a další) je doslova pár kroků. Pro rodiny s dětmi je v okolí k dispozici několik mateřských školek a základních škol, včetně ZŠ Václava Rabase a ZŠ Cyrila Boudy.
Zdravotní péče je zajištěna prostřednictvím Oblastní nemocnice Kladno, která se nachází v dosahu městské hromadné dopravy, a také řady praktických lékařů, specialistů a lékáren v centru města. V blízkém okolí se nachází také pošta, banky, restaurace a kavárny.
Kladno nabízí bohaté možnosti trávení volného času pro všechny věkové kategorie. Milovníci sportu ocení blízkost zimního stadiónu, kde hraje legendární kladenský hokej, aquapark Lagoon s wellness centrem, nebo moderní fitness centra. Pro rodiny s dětmi jsou k dispozici dětská hřiště a sportovní areály.
Kulturní vyžití zajišťuje Městské divadlo Kladno, kino, městská knihovna a různé kulturní akce pořádané během roku. Nákupní možnosti rozšiřuje Oaza Kladno – moderní nákupní centrum s wide spektrem obchodů, restaurací a služeb.
Jednou z největších výhod bydlení v Kladně je snadná dostupnost přírody. Pouhých několik minut chůze od bytu se nachází Kladenské lesy, které nabízejí kilometry značených turistických a cyklistických tras. Oblíbeným cílem je nedaleké Buštěhradské Kambrium s geologickými zajímavostmi nebo rekreační oblast kolem rybníka Milada u Ústí nad Labem, která je dostupná autem za 30 minut.
Pro aktivní odpočinek slouží také městský park s možnostmi procházek a sportovních aktivit, nebo blízké golfové hřiště v Kořensku.
Lokalita vyniká vynikajícím dopravním napojením, které je klíčové pro každodenní dojíždění. Autobusová zastávka se nachází přímo v ulici Václava Rabase, odkud jezdí pravidelné spoje městské hromadné dopravy do centra Kladna i do okolních obcí.
Vlakové spojení do Prahy je zajištěno z hlavního nádraží Kladno, které je dostupné městskou dopravou za 10 minut. Vlaky do Prahy jezdí v pravidelných intervalech každých 30 minut, cesta do centra Prahy trvá přibližně 45 minut. Alternativně lze využít autobusové spojení do Prahy, které je rovněž velmi frekventované.
Pro majitele automobilů je výhodou rychlé napojení na dálnici D6, která umožňuje pohodlné cestování směr Praha, Karlovy Vary nebo Německo.
Proč zvolit právě tento byt?
• Prostorná dispozice 3+1 s lodžií a sklepem
• Kompletní rekonstrukce bytu před zhruba 7 lety
• Revitalizovaný bytový dům s novou střechou a zateplením
• Vynikající lokalita s kompletní občanskou vybaveností
• Skvělé dopravní spojení do Prahy i po Kladně
• Blízkost přírody a rekreačních možností
• Investiční potenciál díky rostoucí poptávce po bydlení v Kladně
Jedná se o jedinečnou příležitost získat kvalitní byt v dynamicky se rozvíjející lokalitě s výbornou perspektivou. Byt je vhodný jak pro vlastní bydlení, tak jako investice.
Pro více informací, prohlídku nemovitosti (osobní nebo virtuální) nebo zodpovězení Vašich dotazů nás neváhejte kontaktovat. Těšíme se na Vaši zpětnou vazbu a budeme rádi, když Vám pomůžeme najít Váš nový domov.
Všechny uvedené informace jsou nezávazné a mohou podléhat změnám. Doporučujeme osobní prohlídku nemovitosti.
Pro zájemce máme připravené financování hypotečním úvěrem, nebo celou škálu možností financování i bez prokazování příjmů.
Pomocí naší hypoteční kalkulačky si můžete udělat orientační představu o výši měsíčních splátek hypotéky. O vše ostatní se pak postaráme my ve spolupráci s našimi obchodními partnery.
24 288 Kč
* Odhadovaná měsíční splátka vychází z výše úvěru Kč s pevnou úrokovou sazbou % po celou dobu trvání úvěru.
Prodáváte nemovitost a potřebujete zjistit její reálnou hodnotu?
Uživatel serveru RealityMIX.cz (dále jen „Server“) dostupného na internetové adrese (URL) https://www.realitymix.cz, který provozuje společnost DALTEN media s.r.o., se sídlem Na Harfě 916/9a, Praha 9, 190 00, IČO: 271 35 306 (dále jen „Správce“) jako provozovateli tohoto Serveru uděluje svůj výslovný souhlas v souladu s ustanovením § 5 zákona č. 101/2000 Sb. O ochraně osobních údajů a o změně některých zákonů, v platném znění (dále jen „zákon o ochraně osobních údajů“), se zpracováním uživatelem poskytnutých osobních údajů a dalších dat.
Uživatel poskytuje Správci osobní údaje v rozsahu: jméno, příjmení, e-mailová adresa, telefonický kontakt a další data, a to z důvodu projeveného zájmu o nemovitost, kde prostřednictvím služby Serveru Správce osloví Uživatel inzerenta uvedeného v detailu
nemovitosti - Keller Williams Czech Republic (IČ 07796340) se zájmem o jeho služby. Tato společnost je součástí seskupení/sítě/franšízového modelu realitních kanceláří, jejich seznam můžete zobrazit kliknutím na tento odkaz.
Keller Williams Czech Republic (IČ 07796340) , Nemovito by Keller Williams (IČ 10826971) , Keller Williams Czech Republic (IČ 07796340) , Keller Williams - centrála (IČ 06521924)
Uživatel tyto osobní údaje poskytuje dobrovolně a bere na vědomí, že součástí služeb Správce, které Správce Uživateli poskytuje, je vyhledání všech Uživateli vyhovujících (dle parametrů - cena, typ nemovitosti, lokalita atd.) nemovitostí. Správce za tímto účelem provozuje aplikace Hlídací pes a newsletter. Tyto služby je možné z každého zaslaného emailu odhlásit. Souhlas se zpracováním osobních údajů Uživatel poskytuje Správci na dobu neurčitou s tím, že svůj udělený souhlas může Uživatel kdykoliv na drese správce info@realitymix.cz odvolat. Správce garantuje Uživateli i další práva uvedené v ustanovení §11 a §21 zákoba č. 101/200 Sb. Ve znění pozdějších předpisů.
Více informací o zpracování údajů získáte zde (realitymix.cz/zasady-ochrany-osobnich-udaju)