Představuji k prodeji nově vznikající novostavbu rodinného domu č. 5 v rámci projektu Domy pod platany v Kosmonosích u Mladé Boleslavi.
Kompletní informace o projektu, o samotném domě i o standardech a nadstandardech najdete na webových stránkách projektu: Domy pod platany.
V rámci tohoto projektu vzniká na rovinaté louce jen pár minut od centra Mladé Boleslavi komplex 21 nových rodinných domů navržených renomovaným studiem Hora Architekti s.r.o. Jedná se o moderní dřevostavby realizované specializovanou stavební společností Vexta, která poskytuje na skelet domu 50 letou záruku.
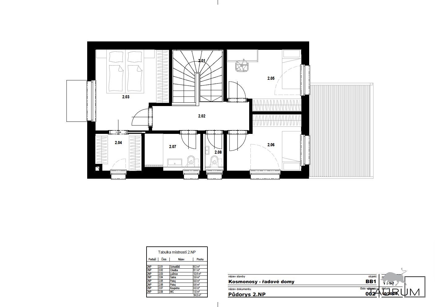
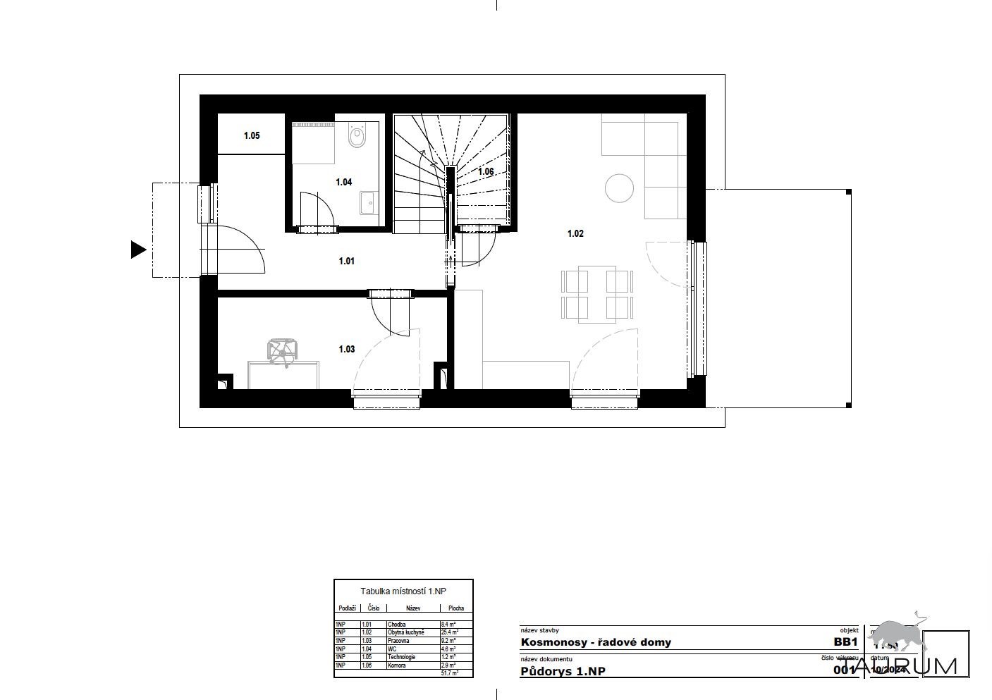
Dispozice domu:
Dům č. 5 je řadový dvojdům o dispozici 5+kk a ploše 105 m2, stojící na pozemku o výměře 445 m2. Je možné objednat i prodlouženou variantu domu, která má plochu domu 120 m2. V domě jsou 4 samostatné pokoje, 1 obývací pokoj s kuchyňským prostorem, 2x koupelna s WC, další samostatné WC, šatna, úložný prostor pod schodištěm a místo pro technologie.
Technické informace:
Domy jsou již v základu vybaveny kvalitními standardy a technologiemi a dále je možné vybírat ze široké nabídky nadstandardního vybavení.
Vytápění a ohřev vody jsou zajištěny tepelným čerpadlem vzduch voda zn. Vaillant se zásobníkem na teplou vodu a s možností chlazení v létě. Topným (chladícím) prvkem jsou podlahová teplovodní tělesa. Okna v domě jsou plastová vybavená trojskly. Dům je vybaven tepelnou i zvukovou izolací. Dům je napojen na obecní vodovod, kanalizaci i přípojku elektřiny. Součástí ceny domu je i oplocení, ručně ovládaná otevírací brána, štěrková příprava na chodníčky kolem domu, parkovací stání, příprava elektroinstalace pro případnou montáž elektrické vjezdové brány a příprava na předokenní žaluzie (kaslíky a přívod elektřiny). Kompletní technické informace o domě a o vybavení obsaženém ve standardu je ke stažení na webových stránkách projektu. Stejně tak i seznam volitelných nadstandardů.
Časový průběh a financování:
Nyní do konce roku 2025 budou na pozemku vybudovány komunikace a přípojky sítí. Samotná výstavba domu dle objednávky klienta může započít na začátku 2026. Realizace domu trvá přibližně 5 měsíců, dům tedy může být hotový do poloviny roku 2026.
S klienty bude postupně podepisována rezervační smlouva, smlouva o smlouvě budoucí a následně kupní smlouva na pozemek a smlouva o dílo na výstavbu domu. Dům je možné financovat prostřednictvím hypotečního úvěru.
Pro koupi domu zajišťujeme s partnery kompletní realitní a právní servis a financování hypotečním úvěrem.
Kontaktujte mě prosím pro další informace:
Jan Štěpánek
TAURUM reality
Pomocí naší hypoteční kalkulačky si můžete udělat orientační představu o výši měsíčních splátek hypotéky. O vše ostatní se pak postaráme my ve spolupráci s našimi obchodními partnery.
45 384 Kč
* Odhadovaná měsíční splátka vychází z výše úvěru Kč s pevnou úrokovou sazbou % po celou dobu trvání úvěru.
Uživatel serveru RealityMIX.cz (dále jen „Server“) dostupného na internetové adrese (URL) https://www.realitymix.cz, který provozuje společnost DALTEN media s.r.o., se sídlem Na Harfě 916/9a, Praha 9, 190 00, IČO: 271 35 306 (dále jen „Správce“) jako provozovateli tohoto Serveru uděluje svůj výslovný souhlas v souladu s ustanovením § 5 zákona č. 101/2000 Sb. O ochraně osobních údajů a o změně některých zákonů, v platném znění (dále jen „zákon o ochraně osobních údajů“), se zpracováním uživatelem poskytnutých osobních údajů a dalších dat.
Uživatel poskytuje Správci osobní údaje v rozsahu: jméno, příjmení, e-mailová adresa, telefonický kontakt a další data, a to z důvodu projeveného zájmu o nemovitost, kde prostřednictvím služby Serveru Správce osloví Uživatel inzerenta uvedeného v detailu
nemovitosti - TAURUM reality s.r.o. (IČ 05904498) se zájmem o jeho služby.
Uživatel tyto osobní údaje poskytuje dobrovolně a bere na vědomí, že součástí služeb Správce, které Správce Uživateli poskytuje, je vyhledání všech Uživateli vyhovujících (dle parametrů - cena, typ nemovitosti, lokalita atd.) nemovitostí. Správce za tímto účelem provozuje aplikace Hlídací pes a newsletter. Tyto služby je možné z každého zaslaného emailu odhlásit. Souhlas se zpracováním osobních údajů Uživatel poskytuje Správci na dobu neurčitou s tím, že svůj udělený souhlas může Uživatel kdykoliv na drese správce info@realitymix.cz odvolat. Správce garantuje Uživateli i další práva uvedené v ustanovení §11 a §21 zákoba č. 101/200 Sb. Ve znění pozdějších předpisů.
Více informací o zpracování údajů získáte zde (realitymix.cz/zasady-ochrany-osobnich-udaju)