Prodej rodinného domu v Kouřimi o celkové výměře 245 m2 a plochou pozemku 1759 m2.
Nabízíme Vám k prodeji mimořádnou nemovitost - prostorný rodinný dům 6+2 na pozemku o rozloze 1759 m2, nacházející se v atraktivní lokalitě historického města Kouřim. Projektantem je Ing. arch. Josef Smola, který je známý realizacemi především pasivních a nízkoenergetických staveb.
Dům byl kolaudován v roce 2005 a je ve velmi dobrém stavu. Byl postaven ze dřevěných panelů, zateplen polystyrenem, a navíc obložen dřevem. Celková tloušťka stěn je 38 cm. Základy jsou betonové. Plocha zelené střechy, která je výborným izolantem, je 215 m2 na domě a dalších 55 m2 na parkovacím stání.
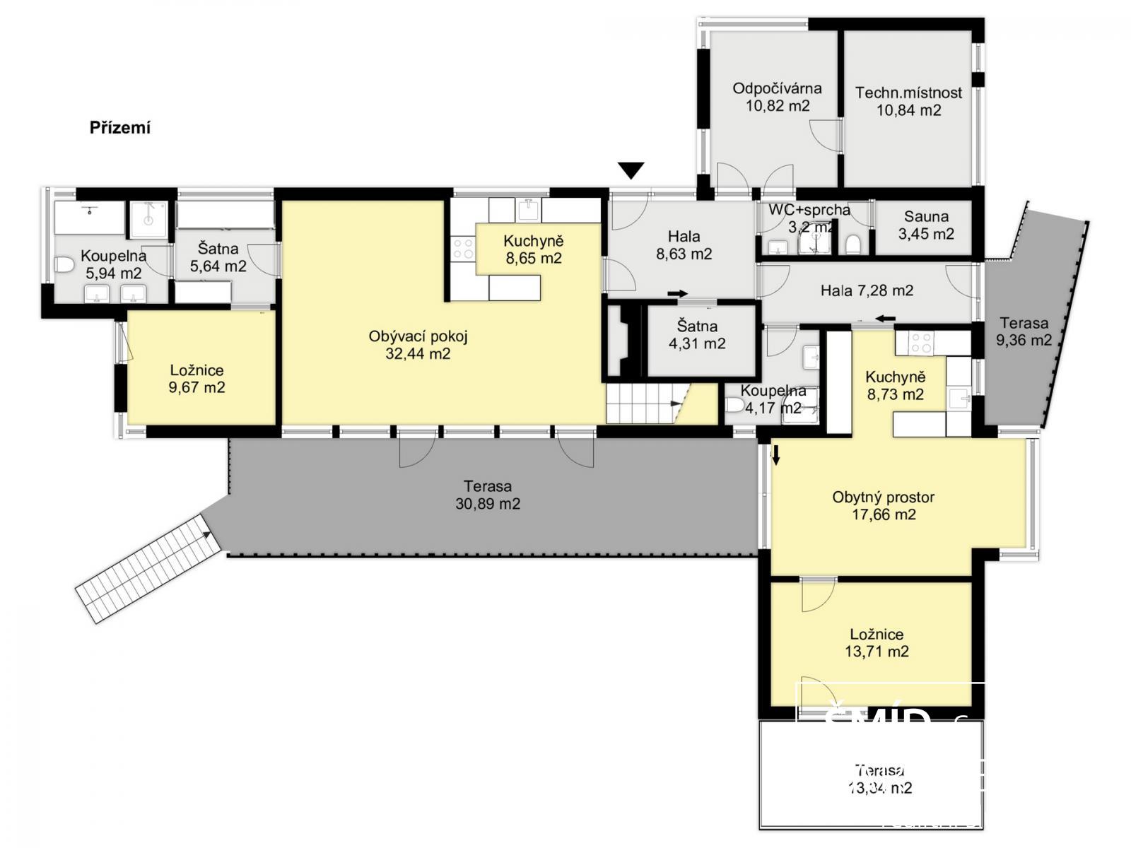
Celková užitná podlahová plocha prvního a druhého nadzemního podlaží je 245 m2. Plocha suterénních a skladovacích prostor pod domem je 130 m2. Součástí domu jsou 3 terasy, celkem 53 m2. Na pozemku jsou parkovací stání pro 3 auta.
Vytápění je elektrické a je rozvedeno po většině domu podlahami. V ostatních místnostech jsou přímotopy. Alternativou jsou krbová kamna na tuhá paliva v obývacím pokoji. Kanalizace i vodovod jsou obecní.
Dům má dvě oddělené bytové jednotky a je vhodný především k bydlení pro vícečlennou rodinu. Každá bytová jednotka má vlastní vchod, vlastní terasu, koupelnu a kuchyň a také vlastní parkovací stání. Dále je k dispozici sauna, relaxační místnost a další technické místnosti a šatny.
Po domě je rozvedeno centrální vysávání. Je tu instalován systém na dodatečnou filtraci pitné vody. Dům využívá speciální systém přisávání a odsávání vzduchu, který funguje zcela automaticky a odsává teplý a vlhký vzduch z koupelen a kuchyní.
Nemovitost je napojena na pult centrální ochrany, má všude pohybová bezpečnostní čidla.
Na okrasné zahradě je instalován závlahový systém. Na oknech v prvním patře jsou elektrické rolety a na terase elektrická markýza.
Co se týče PENB, je patrné, že tabulka Ukazatele energetické náročnosti sice uvádí ve dvou kategoriích třídu B (velmi úsporná) a ve třech kategoriích třídu C (úsporná), ale celkově vychází na G. Zařazení do třídy G vychází výhradně z dikce uvedené vyhlášky, která znevýhodňuje energie z neobnovitelných zdrojů koeficientem 2,6 ve srovnání s energiemi ze zdrojů obnovitelných. Jedná se tedy ryze o klimatický pohled současné doby bez vazby na skutečný stav a technické řešení a elektrické vytápění bez využití fotovoltaiky nebo tepelného čerpadla zařadí jako klimaticky nevhodné, a tudíž třída G.. Z praktického pohledu běžného života v RD a porovnání obytné plochy s roční skutečně spotřebovanou elektrickou energií (vytápění, ohřev vody, osvětlení, vaření, ostatní elektrospotřebiče v domácnosti a sauna) vychází energetická náročnost na hodnotu ca 95 kWh/ m2. . Celková spotřeba elektřiny v celém RD (oba byty + technické zázemí vč. sauny) za sezónu 23/24: 19,138 MWh ( 17.427 MWh nízký tarif ) , 0,075 -přepočet na MWh/1 m2, Celkově 116 362,- za rok. Dále vodné a stočné cca 1 580,-/měsíc včetně závlahy zahrady, pult centrální ochrany 1 000,-/ měsíc
Pomocí naší hypoteční kalkulačky si můžete udělat orientační představu o výši měsíčních splátek hypotéky. O vše ostatní se pak postaráme my ve spolupráci s našimi obchodními partnery.
52 553 Kč
* Odhadovaná měsíční splátka vychází z výše úvěru Kč s pevnou úrokovou sazbou % po celou dobu trvání úvěru.
Uživatel serveru RealityMIX.cz (dále jen „Server“) dostupného na internetové adrese (URL) https://www.realitymix.cz, který provozuje společnost DALTEN media s.r.o., se sídlem Na Harfě 916/9a, Praha 9, 190 00, IČO: 271 35 306 (dále jen „Správce“) jako provozovateli tohoto Serveru uděluje svůj výslovný souhlas v souladu s ustanovením § 5 zákona č. 101/2000 Sb. O ochraně osobních údajů a o změně některých zákonů, v platném znění (dále jen „zákon o ochraně osobních údajů“), se zpracováním uživatelem poskytnutých osobních údajů a dalších dat.
Uživatel poskytuje Správci osobní údaje v rozsahu: jméno, příjmení, e-mailová adresa, telefonický kontakt a další data, a to z důvodu projeveného zájmu o nemovitost, kde prostřednictvím služby Serveru Správce osloví Uživatel inzerenta uvedeného v detailu
nemovitosti - ŠMÍD & PARTNERS (IČ 24122955) se zájmem o jeho služby.
Uživatel tyto osobní údaje poskytuje dobrovolně a bere na vědomí, že součástí služeb Správce, které Správce Uživateli poskytuje, je vyhledání všech Uživateli vyhovujících (dle parametrů - cena, typ nemovitosti, lokalita atd.) nemovitostí. Správce za tímto účelem provozuje aplikace Hlídací pes a newsletter. Tyto služby je možné z každého zaslaného emailu odhlásit. Souhlas se zpracováním osobních údajů Uživatel poskytuje Správci na dobu neurčitou s tím, že svůj udělený souhlas může Uživatel kdykoliv na drese správce info@realitymix.cz odvolat. Správce garantuje Uživateli i další práva uvedené v ustanovení §11 a §21 zákoba č. 101/200 Sb. Ve znění pozdějších předpisů.
Více informací o zpracování údajů získáte zde (realitymix.cz/zasady-ochrany-osobnich-udaju)