Prodej nízkoenergetické novostavby (Dům B) 162m2 těsně před dokončením
Nabízíme k prodeji moderní nízkoenergetickou novostavbu v řadové zástavbě, která se nachází v klidné lokalitě jen 1,5 km od Mohelnice 15 - 20minut jízdy od Olomouce. Dům je umístěn na vlastním pozemku o výměře 640 m² a nabízí komfortní a úsporné bydlení.
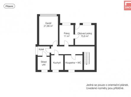
Disponuje promyšlenou dispozicí 3+kk s důrazem na prostor a pohodlí moderní rodiny. V domě se nachází dvě toalety, prostorná koupelna s vanou a velkým sprchovým koutem, otevřený obývací pokoj s kuchyňským koutem a přímým vstupem na terasu, ložnici a dostatek úložných prostor včetně půdy.
Součástí standardního vybavení jsou venkovní žaluzie, úsporné tepelné čerpadlo vzduch–voda, upravená zahrada i okolí před domem, příprava na instalaci solární elektrárny, prostorná garáž i venkovní parkovací stání. Dům je připraven k dokončení tak, aby si budoucí majitel mohl vybrat z více barevných variant podlah a obkladů podle svého vkusu. Standardní provedení je již zahrnuto v ceně a vyznačuje se vysokou kvalitou použitých materiálů i zařizovacích prvků, takže nový domov bude nejen funkční, ale i nadčasově elegantní.
Zahrada poskytuje naprosto ideální podmínky pro odpočinek, rodinné aktivity nebo zahradničení.
Lokalita vyniká výjimečným klidem a současně skvělou dostupností díky blízkému napojení na dálnici. Jedná se o ideální místo pro ty, kteří hledají pohodlné a energeticky efektivní bydlení v dosahu města, ale zároveň v klidném prostředí.
Pro více informací nebo sjednání prohlídky nás neváhejte kontaktovat. Tento dům je připravený stát se vaším novým domovem.
Cena:
Cena na vyžádání
Poznámka:
cena na vyžádání
Číslo zakázky:
REALITYMIX-20007
Podrobné informace
Poloha objektu:řadový
Druh objektu:cihlová
Stav objektu:novostavba
Počet podlaží objektu:1
Typ domu:přízemní
Zastavěná plocha:162 m²
Plocha parcely:640 m²
Užitná plocha:162 m²
Ostatní:Bezbarierový přístup
Umístění objektu:okraj obce
Komunikace:betonová
Elektřina:Elektro - 230 V
Voda:Zdroj pro celý objekt
Telekomunikace:Telefon, Internet
Odpad:Kanalizace
Ostatní rozvody:Kabelová televize
Energetická náročnost budovy:B - Velmi úsporná
Energetický ukazatel podle vyhlášky:č. 264/2020 Sb.
Uživatel serveru RealityMIX.cz (dále jen „Server“) dostupného na internetové adrese (URL) https://www.realitymix.cz, který provozuje společnost DALTEN media s.r.o., se sídlem Na Harfě 916/9a, Praha 9, 190 00, IČO: 271 35 306 (dále jen „Správce“) jako provozovateli tohoto Serveru uděluje svůj výslovný souhlas v souladu s ustanovením § 5 zákona č. 101/2000 Sb. O ochraně osobních údajů a o změně některých zákonů, v platném znění (dále jen „zákon o ochraně osobních údajů“), se zpracováním uživatelem poskytnutých osobních údajů a dalších dat.
Uživatel poskytuje Správci osobní údaje v rozsahu: jméno, příjmení, e-mailová adresa, telefonický kontakt a další data, a to z důvodu projeveného zájmu o nemovitost, kde prostřednictvím služby Serveru Správce osloví Uživatel inzerenta uvedeného v detailu
nemovitosti - DACHI - realitní kancelář (IČ 26821176) se zájmem o jeho služby.
Uživatel tyto osobní údaje poskytuje dobrovolně a bere na vědomí, že součástí služeb Správce, které Správce Uživateli poskytuje, je vyhledání všech Uživateli vyhovujících (dle parametrů - cena, typ nemovitosti, lokalita atd.) nemovitostí. Správce za tímto účelem provozuje aplikace Hlídací pes a newsletter. Tyto služby je možné z každého zaslaného emailu odhlásit. Souhlas se zpracováním osobních údajů Uživatel poskytuje Správci na dobu neurčitou s tím, že svůj udělený souhlas může Uživatel kdykoliv na drese správce info@realitymix.cz odvolat. Správce garantuje Uživateli i další práva uvedené v ustanovení §11 a §21 zákoba č. 101/200 Sb. Ve znění pozdějších předpisů.
Více informací o zpracování údajů získáte zde (realitymix.cz/zasady-ochrany-osobnich-udaju)