Prostorný mezonet 4+kk v Nehvizdech – skvělá dostupnost do Prahy
Prostorný mezonet 4+kk, 107 m², Nehvizdy – skvělá dostupnost do Prahy
Hledáte velký, světlý byt s výborným spojením do Prahy?
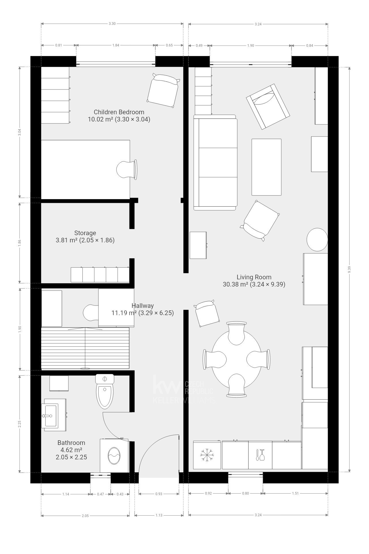
V oblíbeném městysu Nehvizdy, pouhých 8 km od Horních Počernic, nabízíme k prodeji prostorný mezonet 4+kk v osobním vlastnictví o podlahové ploše 107 m². Nachází se ve 2. a 3. nadzemním podlaží cihlového domu z roku 2001 v ulici Pražská.
Dispozice
Do bytu vstupujete samostatným vstupem z pavlače ve 2. patře.
Spodní patro: obývací pokoj s kuchyní (30,4 m²), ložnice (10 m²), Komora předsíň (4 m²) , koupelna s WC (4,25 m²), chodba a schodiště (11,2m²).
Horní patro: chodba (2,84 m²), pokoj (14,92 m²), ložnice (23 m²), koupelna s wc (7,14 m²).
Vybavení a technické údaje
- Vlastní plynový kotel s průtokovým ohřevem TUV
- Samostatný elektroměr, plynoměr a podružný vodoměr
- Koupelna s vanou, umyvadlem a WC
- Cihlový dům rozdělený na 12 bytových jednotek
- Parkování na ulici
Výhody lokality
Nehvizdy jsou vyhledávaným místem pro rodiny – nabízejí kompletní občanskou vybavenost:
ZŠ, MŠ, obchody, restaurace, lékař, sportoviště, sokolovna, cyklostezky, zoopark.
Autobus 30 min na metro B – Černý Most, autem cca 15 min do Prahy
Plánovaný terminál vysokorychlostní trati Praha–Brno pro ještě rychlejší spojení
Pro koho je byt vhodný:
Rodinné bydlení s dostatkem prostoru
Investice k dlouhodobému pronájmu
Ihned k nastěhování
Jiří Koucký – realitní makléř
Uvedené výměry jsou orientační. V případě více zájemců bude nemovitost prodána nejlepší nabídce a majitel si vyhrazuje právo vybrat kupujícího na základě jim zvolených kritérií. Veškeré zveřejněné údaje obsažené v tomto inzerátu mají pouze informativní charakter a nejsou nabídkou ve smyslu § 1731 nebo § 1732 občanského zákoníku, ani se nejedná o veřejný příslib dle § 1733 občanského zákoníku.
Pomocí naší hypoteční kalkulačky si můžete udělat orientační představu o výši měsíčních splátek hypotéky. O vše ostatní se pak postaráme my ve spolupráci s našimi obchodními partnery.
33 200 Kč
* Odhadovaná měsíční splátka vychází z výše úvěru Kč s pevnou úrokovou sazbou % po celou dobu trvání úvěru.
Prodáváte nemovitost a potřebujete zjistit její reálnou hodnotu?
Uživatel serveru RealityMIX.cz (dále jen „Server“) dostupného na internetové adrese (URL) https://www.realitymix.cz, který provozuje společnost DALTEN media s.r.o., se sídlem Na Harfě 916/9a, Praha 9, 190 00, IČO: 271 35 306 (dále jen „Správce“) jako provozovateli tohoto Serveru uděluje svůj výslovný souhlas v souladu s ustanovením § 5 zákona č. 101/2000 Sb. O ochraně osobních údajů a o změně některých zákonů, v platném znění (dále jen „zákon o ochraně osobních údajů“), se zpracováním uživatelem poskytnutých osobních údajů a dalších dat.
Uživatel poskytuje Správci osobní údaje v rozsahu: jméno, příjmení, e-mailová adresa, telefonický kontakt a další data, a to z důvodu projeveného zájmu o nemovitost, kde prostřednictvím služby Serveru Správce osloví Uživatel inzerenta uvedeného v detailu
nemovitosti - Keller Williams Czech Republic (IČ 07796340) se zájmem o jeho služby. Tato společnost je součástí seskupení/sítě/franšízového modelu realitních kanceláří, jejich seznam můžete zobrazit kliknutím na tento odkaz.
Keller Williams Czech Republic (IČ 07796340) , Nemovito by Keller Williams (IČ 10826971) , Keller Williams Czech Republic (IČ 07796340) , Keller Williams - centrála (IČ 06521924)
Uživatel tyto osobní údaje poskytuje dobrovolně a bere na vědomí, že součástí služeb Správce, které Správce Uživateli poskytuje, je vyhledání všech Uživateli vyhovujících (dle parametrů - cena, typ nemovitosti, lokalita atd.) nemovitostí. Správce za tímto účelem provozuje aplikace Hlídací pes a newsletter. Tyto služby je možné z každého zaslaného emailu odhlásit. Souhlas se zpracováním osobních údajů Uživatel poskytuje Správci na dobu neurčitou s tím, že svůj udělený souhlas může Uživatel kdykoliv na drese správce info@realitymix.cz odvolat. Správce garantuje Uživateli i další práva uvedené v ustanovení §11 a §21 zákoba č. 101/200 Sb. Ve znění pozdějších předpisů.
Více informací o zpracování údajů získáte zde (realitymix.cz/zasady-ochrany-osobnich-udaju)