Dům na prodej 8+1, 354m2, 3x balkon, terasa a zahrada 200m2. Habartická, Praha 9 - Střížkov.
Předej řadového dumu 8+1, 354m2, 3x balkon, terasa a zahrada 200m2. Habartická, Praha 9 - Střížkov.
Zajistíme vám americkou hypotéku bez doložení příjmů, možnost převodu do družstva nebo řešení splátek formou nájmu.
Nabídka řadového domu v zánovní novostavbě na prodej v Praze Střížkově, pouhých 5 minut od metra. Dům má 3 nadzemní a jedno podzemní patro. Nabízí 8+1 pokojů. Celková užitná plocha činí 354 m2, s možností využití podkroví.
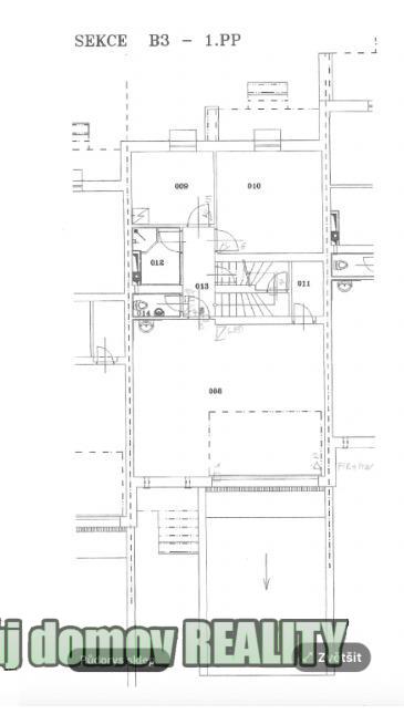
V domě naleznete 4 nadzemní podlaží: snížené přízemí, které má 2 neprůchozí místnosti s okny a oddělené WC. Dále je zde sprchový kout v technické místnosti (kotelna), kde je umístěn plynový kondenzační kotel a elektrický bojler. K dispozici je též prádelna, pokoj vhodný jako kancelář, kumbálek pod schody a garáž pro 2 automobily, kde je umístěno umyvadlo a technická místnost.
Na prvním podlaží se nachází 3 pokoje, vstupní hala, kuchyně s prostorným obývacím pokojem, s nádherným výhledem, vchod na terasu a do zahrady o rozloze 200 m2, kde si můžete užívat rodinné chvíle, grilování nebo postavit bazén s opalováním. Dále zde jsou 2 neprůchozí pokoje, koupelna, WC, komora a balkon.
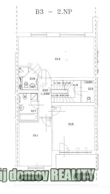
Na druhém podlaží najdete velký pokoj se sprchou a WC, další neprůchozí pokoj a další pokoj s balkonem.
Ve třetím podlaží jsou 3 neprůchozí místnosti, koupelna, samostatné WC a střešní balkon.
Stavba: Cihlová
Stav objektu: Zánovní
Poloha domu: Řadový
Typ domu: Patrový
Podlaží:4 včetně 1 podzemního
Plocha zastavěná:99 m2
Užitná plocha:354 m2
Plocha podlahová:350 m2
Plocha pozemku:380 m2
Zahrada: 2OO m2
Sklep: ano
Parkování: 2 garážovaná místa
Garáž: ano
Datum nastěhování: Ihned
Topení: Ústřední plynové
Plyn: Plynovod
Odpad: Veřejná kanalizace
Energetická náročnost budovy:Třída G - Mimořádně nehospodárná č. 78/2013 Sb. podle vyhlášky
Prodejní cena činí 28 900 000 Kč.
Pro více informací a domluvení prohlídky kontaktujte našeho realitního makléře:
Realitní kancelář: Můj domov REALITY
Makléř: Lidiya Savynets
Komunikační aplikace: WhatsApp / Viber / Telegram: @LidiyaSyvynets
Dům má dřevěné parkety a je ideální pro rodinu, firmu a kanceláře, hodí se také jako školka.
Pokud hledáte pohodlné a klidné bydlení v Praze, a kousek od metra, pak tato nemovitost je přesně pro vás.
Neváhejte a kontaktujte nás. Těšíme se na vaši zprávu. Děkujeme.
Uživatel serveru RealityMIX.cz (dále jen „Server“) dostupného na internetové adrese (URL) https://www.realitymix.cz, který provozuje společnost DALTEN media s.r.o., se sídlem Na Harfě 916/9a, Praha 9, 190 00, IČO: 271 35 306 (dále jen „Správce“) jako provozovateli tohoto Serveru uděluje svůj výslovný souhlas v souladu s ustanovením § 5 zákona č. 101/2000 Sb. O ochraně osobních údajů a o změně některých zákonů, v platném znění (dále jen „zákon o ochraně osobních údajů“), se zpracováním uživatelem poskytnutých osobních údajů a dalších dat.
Uživatel poskytuje Správci osobní údaje v rozsahu: jméno, příjmení, e-mailová adresa, telefonický kontakt a další data, a to z důvodu projeveného zájmu o nemovitost, kde prostřednictvím služby Serveru Správce osloví Uživatel inzerenta uvedeného v detailu
nemovitosti - Můj Domov Reality s.r.o. (IČ 08487316) se zájmem o jeho služby.
Uživatel tyto osobní údaje poskytuje dobrovolně a bere na vědomí, že součástí služeb Správce, které Správce Uživateli poskytuje, je vyhledání všech Uživateli vyhovujících (dle parametrů - cena, typ nemovitosti, lokalita atd.) nemovitostí. Správce za tímto účelem provozuje aplikace Hlídací pes a newsletter. Tyto služby je možné z každého zaslaného emailu odhlásit. Souhlas se zpracováním osobních údajů Uživatel poskytuje Správci na dobu neurčitou s tím, že svůj udělený souhlas může Uživatel kdykoliv na drese správce info@realitymix.cz odvolat. Správce garantuje Uživateli i další práva uvedené v ustanovení §11 a §21 zákoba č. 101/200 Sb. Ve znění pozdějších předpisů.
Více informací o zpracování údajů získáte zde (realitymix.cz/zasady-ochrany-osobnich-udaju)