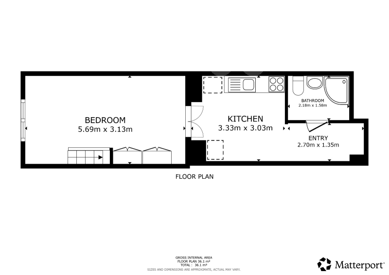
Nabízíme k prodeji bytovou jednotku o dispozici 1+1, situovanou ve 3. nadzemním podlaží bytového domu v atraktivní lokalitě Praha - ulice Lidická. Celková užitá plocha je 43,4m2 ( 35,1m2 + 8,3m2 vyvýšené patro ) . K bytové jednotce náleží komora v přízemí s oknem o výměře 4,5m2, která má skvělé využití jako například ateliér.
Byt se skládá ze samostatné obytné místnosti a kuchyně řešené jako samostatná místnost, což zajišťuje praktické a komfortní uspořádání prostoru. Dále je součástí bytu koupelna. Dispozice je přehledná a nabízí flexibilní využití jak pro vlastní bydlení, tak pro pronájem.
Lokalita Lidická patří dlouhodobě mezi vyhledávané adresy širšího centra Prahy. V okolí se nachází tramvajové zastávky, stanice metra, obchody, restaurace i kompletní občanská vybavenost. Díky vynikající dopravní dostupnosti je zajištěno rychlé spojení do centra města i dalších částí Prahy.
Byt je ideální investiční příležitostí díky stabilní poptávce po nájemním bydlení v této lokalitě, zároveň je velmi vhodný i jako startovací bydlení pro jednotlivce či pár. Momentálně zde žijí nájemci, kteří by rádi pokračovali v nájemném.
Důležité informace - přehledně:
-byt 1+1 (samostatný pokoj + samostatná kuchyň)
-3. nadzemní podlaží
- užitá plocha: 35,1m2 + 8,3m2 vyvýšené patro
-probíhající výstavba výtahu
-výborná dopravní dostupnost (MHD, centrum města)
-ideální investiční byt (vysoká poptávka po pronájmech)
-veškerá občanská vybavenost
V případě jakýchkoli dotazů či zájmu o prohlídku nás neváhejte kontaktovat.
Pomocí naší hypoteční kalkulačky si můžete udělat orientační představu o výši měsíčních splátek hypotéky. O vše ostatní se pak postaráme my ve spolupráci s našimi obchodními partnery.
26 892 Kč
* Odhadovaná měsíční splátka vychází z výše úvěru Kč s pevnou úrokovou sazbou % po celou dobu trvání úvěru.
Prodáváte nemovitost a potřebujete zjistit její reálnou hodnotu?
Uživatel serveru RealityMIX.cz (dále jen „Server“) dostupného na internetové adrese (URL) https://www.realitymix.cz, který provozuje společnost DALTEN media s.r.o., se sídlem Na Harfě 916/9a, Praha 9, 190 00, IČO: 271 35 306 (dále jen „Správce“) jako provozovateli tohoto Serveru uděluje svůj výslovný souhlas v souladu s ustanovením § 5 zákona č. 101/2000 Sb. O ochraně osobních údajů a o změně některých zákonů, v platném znění (dále jen „zákon o ochraně osobních údajů“), se zpracováním uživatelem poskytnutých osobních údajů a dalších dat.
Uživatel poskytuje Správci osobní údaje v rozsahu: jméno, příjmení, e-mailová adresa, telefonický kontakt a další data, a to z důvodu projeveného zájmu o nemovitost, kde prostřednictvím služby Serveru Správce osloví Uživatel inzerenta uvedeného v detailu
nemovitosti - Bidli reality, a.s. (IČ 06790763) se zájmem o jeho služby. Tato společnost je součástí seskupení/sítě/franšízového modelu realitních kanceláří, jejich seznam můžete zobrazit kliknutím na tento odkaz.
Hypocentrum modré pyramidy - Praha (IČ ) , Hypocentrum modré pyramidy - Brno (IČ ) , Hypocentrum Modré pyramidy - Hradec Králové (IČ ) , Hypocentrum Modré pyramidy - České Budějovice (IČ ) , Hypocentrum Modré pyramidy - Pardubice (IČ ) , Hypocentrum Modré pyramidy - Plzeň (IČ ) , Hypocentrum Modré pyramidy - Ústí nad Labem (IČ ) , Hypocentrum Modré pyramidy - Ostrava (IČ ) , Hypocentrum Modré pyramidy - Olomouc (IČ ) , Bidli reality, a.s. (IČ 06790763)
Uživatel tyto osobní údaje poskytuje dobrovolně a bere na vědomí, že součástí služeb Správce, které Správce Uživateli poskytuje, je vyhledání všech Uživateli vyhovujících (dle parametrů - cena, typ nemovitosti, lokalita atd.) nemovitostí. Správce za tímto účelem provozuje aplikace Hlídací pes a newsletter. Tyto služby je možné z každého zaslaného emailu odhlásit. Souhlas se zpracováním osobních údajů Uživatel poskytuje Správci na dobu neurčitou s tím, že svůj udělený souhlas může Uživatel kdykoliv na drese správce info@realitymix.cz odvolat. Správce garantuje Uživateli i další práva uvedené v ustanovení §11 a §21 zákoba č. 101/200 Sb. Ve znění pozdějších předpisů.
Více informací o zpracování údajů získáte zde (realitymix.cz/zasady-ochrany-osobnich-udaju)