Prodej bytu 3+kk 73 m² se zahradou a parkovacím stáním, Praha - Modřany
Vítejte ve Staromodřanské rezidenci — moderním bytovém domě v ulici K Vystrkovu, postaveném v roce 2016. Dům se nachází v klidné části pražských Modřan a nabízí ideální spojení pohodového bydlení v zeleni s výbornou dopravní dostupností do centra Prahy. Zastávky MHD jsou v docházkové vzdálenosti, tramvají se dostanete do centra zhruba za dvacet minut, a skvělé je i napojení na městský okruh a hlavní silniční tahy.
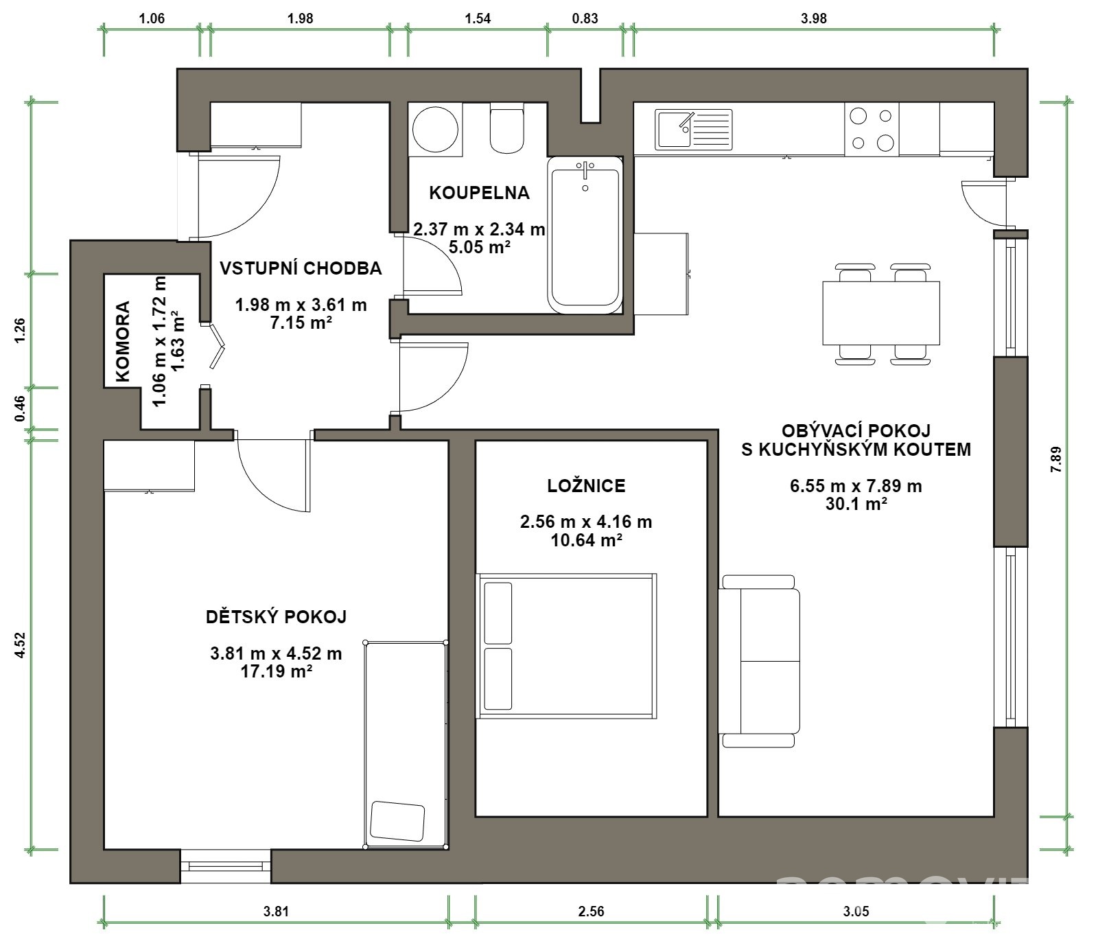
Nabízený byt je atypické 3+kk o celkové ploše 72,8 m², situovaný v přízemí domu. Jeho jedinečnost podtrhuje zahrada o výměře téměř 140 m², která náleží k bytu s právem výlučného užívání – ideální pro rodinné posezení, grilování nebo odpočinek v soukromí. Dispozice bytu nabízí prostorný obývací pokoj s kuchyňským koutem, dvě ložnice a moderní koupelnu. Dominantou obytné části je designová červená kuchyňská linka v lesku, která dodává prostoru charakter a osobitý styl.
K bytu náleží parkovací stání v kryté garáži s velmi pohodlným a širokým vjezdem a také praktická sklepní kóje.
Okolí Staromodřanské rezidence nabízí vše, co si můžete přát pro aktivní i rodinný život. V těsné blízkosti se nachází oblíbená cyklostezka podél Vltavy, ideální pro běh, brusle nebo klidné procházky. Nedaleko najdete školy, školky, obchody, lékaře i restaurace – vše pohodlně dostupné pěšky.
Modřany navíc procházejí dynamickým rozvojem. V bezprostřední blízkosti vzniká nový projekt Cukrovar Modřany, který do lokality přinese další služby, kavárny, obchody a kulturní prostory. Díky tomu oblast získává ještě větší hodnotu a stává se jednou z nejžádanějších částí Prahy pro moderní městské bydlení.
Byt ve Staromodřanské rezidenci je ideální volbou pro ty, kdo hledají klidné, moderní a komfortní bydlení s výbornou dopravní dostupností a rostoucím potenciálem celé lokality. Kombinace soukromé zahrady, promyšlené dispozice a atraktivního okolí tvoří z této nabídky jedinečnou příležitost. Přijďte se přesvědčit osobně – možná právě tady na vás čeká váš nový domov.
Inzerát obsahuje mimo fotografií a plánku také video a virtuální prohlídku nemovitosti - prosím o shlédnutí, ať máte maximum informací.
Pomocí naší hypoteční kalkulačky si můžete udělat orientační představu o výši měsíčních splátek hypotéky. O vše ostatní se pak postaráme my ve spolupráci s našimi obchodními partnery.
48 544 Kč
* Odhadovaná měsíční splátka vychází z výše úvěru Kč s pevnou úrokovou sazbou % po celou dobu trvání úvěru.
Prodáváte nemovitost a potřebujete zjistit její reálnou hodnotu?
Uživatel serveru RealityMIX.cz (dále jen „Server“) dostupného na internetové adrese (URL) https://www.realitymix.cz, který provozuje společnost DALTEN media s.r.o., se sídlem Na Harfě 916/9a, Praha 9, 190 00, IČO: 271 35 306 (dále jen „Správce“) jako provozovateli tohoto Serveru uděluje svůj výslovný souhlas v souladu s ustanovením § 5 zákona č. 101/2000 Sb. O ochraně osobních údajů a o změně některých zákonů, v platném znění (dále jen „zákon o ochraně osobních údajů“), se zpracováním uživatelem poskytnutých osobních údajů a dalších dat.
Uživatel poskytuje Správci osobní údaje v rozsahu: jméno, příjmení, e-mailová adresa, telefonický kontakt a další data, a to z důvodu projeveného zájmu o nemovitost, kde prostřednictvím služby Serveru Správce osloví Uživatel inzerenta uvedeného v detailu
nemovitosti - Keller Williams Czech Republic (IČ 07796340) se zájmem o jeho služby. Tato společnost je součástí seskupení/sítě/franšízového modelu realitních kanceláří, jejich seznam můžete zobrazit kliknutím na tento odkaz.
Keller Williams Czech Republic (IČ 07796340) , Nemovito by Keller Williams (IČ 10826971) , Keller Williams Czech Republic (IČ 07796340) , Keller Williams - centrála (IČ 06521924)
Uživatel tyto osobní údaje poskytuje dobrovolně a bere na vědomí, že součástí služeb Správce, které Správce Uživateli poskytuje, je vyhledání všech Uživateli vyhovujících (dle parametrů - cena, typ nemovitosti, lokalita atd.) nemovitostí. Správce za tímto účelem provozuje aplikace Hlídací pes a newsletter. Tyto služby je možné z každého zaslaného emailu odhlásit. Souhlas se zpracováním osobních údajů Uživatel poskytuje Správci na dobu neurčitou s tím, že svůj udělený souhlas může Uživatel kdykoliv na drese správce info@realitymix.cz odvolat. Správce garantuje Uživateli i další práva uvedené v ustanovení §11 a §21 zákoba č. 101/200 Sb. Ve znění pozdějších předpisů.
Více informací o zpracování údajů získáte zde (realitymix.cz/zasady-ochrany-osobnich-udaju)