Prodej bytu 3+kk, 93 m2/terasa/předzahrádka 26 m2/sklep/garáž - Praha - Dolní Chabry, novostavba
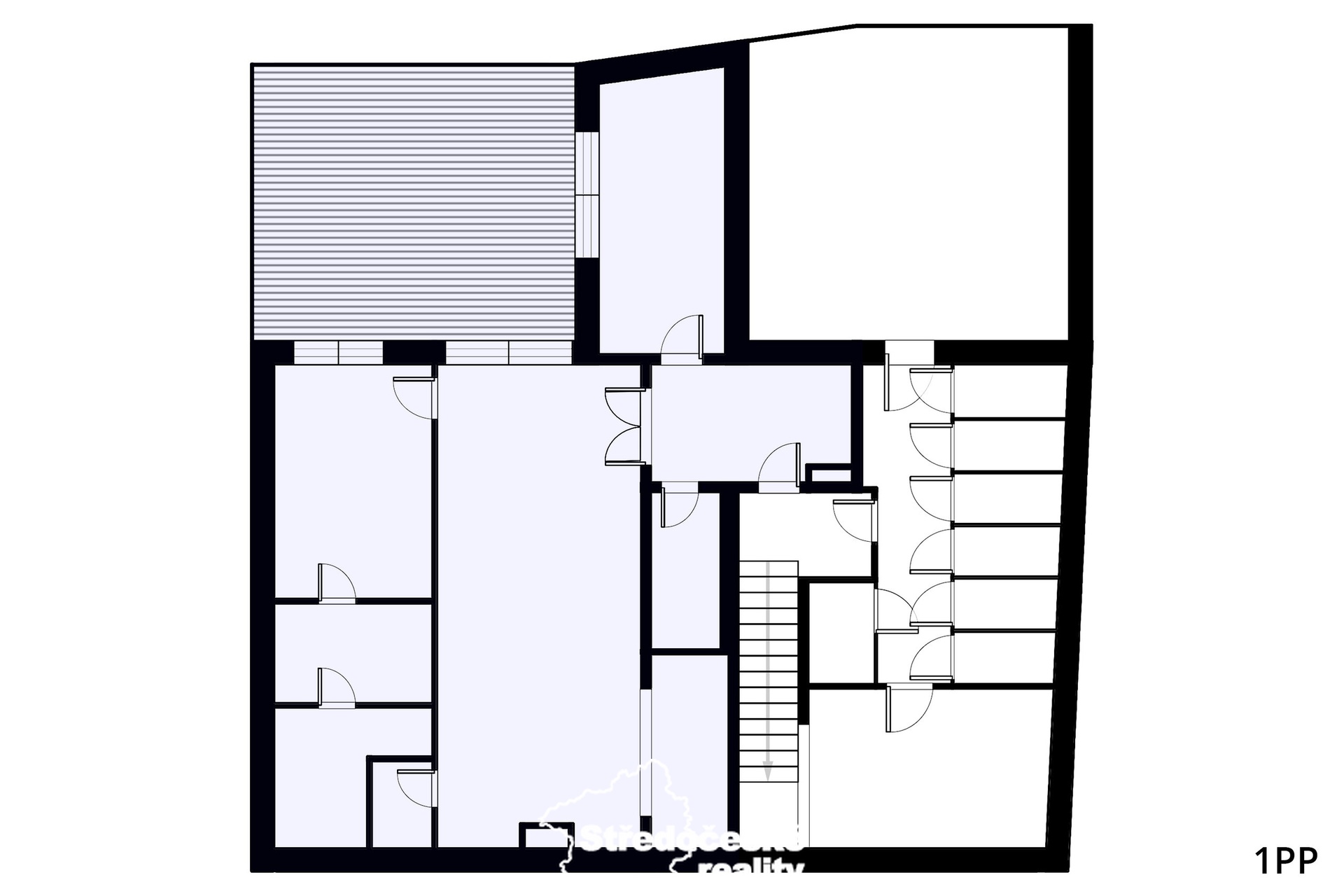
Byt S.1. je největší v projektu Perštejnská (pouze 7 bytů) a je jediný na patře. Je to byt přízemní orientovaný do dvora s předzahrádkou/terasou o velikosti 26 m2. Vstup je přes dvoje francouzské dveře na terasu z obývacího pokoje a jedné ložnice. Obytná plocha je 93 m2 . K příslušenství patří garáž a sklepní kóje hned vedle bytu. Byt je již téměř dokončen a je možné si ho osobně na místě prohlédnout.
Byt má vnitřní rekuperaci vzduchu a přípravu na idividuální klimatizaci. Podlahy jsou dřevěné, okna hliníková s trojskly, k dispozici jsou dvě koupelny.
Nabízíme jedinečné bydlení v projektu Perštejnská, kde iluze Prahy mizí . Jedná se o komorní projekt o sedmi bytových jednotkách ve staré původní zástavbě v Dolních Chabrech na Praze 8.
Dům je již téměř dokončen, kolaudace domu proběhne do konce roku 2025. Nastěhování následně. Neváhejte kontaktovat makléře, ať Vám tato jedinečná šance neuteče.
Zobrazené fotografie interiéru jsou pouze ilustrační a jedná se o vizualizace, nikoliv o skutečný stav dokončeného bytu.
Pomocí naší hypoteční kalkulačky si můžete udělat orientační představu o výši měsíčních splátek hypotéky. O vše ostatní se pak postaráme my ve spolupráci s našimi obchodními partnery.
64 375 Kč
* Odhadovaná měsíční splátka vychází z výše úvěru Kč s pevnou úrokovou sazbou % po celou dobu trvání úvěru.
Prodáváte nemovitost a potřebujete zjistit její reálnou hodnotu?
Uživatel serveru RealityMIX.cz (dále jen „Server“) dostupného na internetové adrese (URL) https://www.realitymix.cz, který provozuje společnost DALTEN media s.r.o., se sídlem Na Harfě 916/9a, Praha 9, 190 00, IČO: 271 35 306 (dále jen „Správce“) jako provozovateli tohoto Serveru uděluje svůj výslovný souhlas v souladu s ustanovením § 5 zákona č. 101/2000 Sb. O ochraně osobních údajů a o změně některých zákonů, v platném znění (dále jen „zákon o ochraně osobních údajů“), se zpracováním uživatelem poskytnutých osobních údajů a dalších dat.
Uživatel poskytuje Správci osobní údaje v rozsahu: jméno, příjmení, e-mailová adresa, telefonický kontakt a další data, a to z důvodu projeveného zájmu o nemovitost, kde prostřednictvím služby Serveru Správce osloví Uživatel inzerenta uvedeného v detailu
nemovitosti - Středočeské reality, spol. s r.o. (IČ 27450767) se zájmem o jeho služby.
Uživatel tyto osobní údaje poskytuje dobrovolně a bere na vědomí, že součástí služeb Správce, které Správce Uživateli poskytuje, je vyhledání všech Uživateli vyhovujících (dle parametrů - cena, typ nemovitosti, lokalita atd.) nemovitostí. Správce za tímto účelem provozuje aplikace Hlídací pes a newsletter. Tyto služby je možné z každého zaslaného emailu odhlásit. Souhlas se zpracováním osobních údajů Uživatel poskytuje Správci na dobu neurčitou s tím, že svůj udělený souhlas může Uživatel kdykoliv na drese správce info@realitymix.cz odvolat. Správce garantuje Uživateli i další práva uvedené v ustanovení §11 a §21 zákoba č. 101/200 Sb. Ve znění pozdějších předpisů.
Více informací o zpracování údajů získáte zde (realitymix.cz/zasady-ochrany-osobnich-udaju)