Prodej bytu 4+kk 174 m², ulice Smíchovská, Praha - Stodůlky
Nabízíme na prodej jedinečnou nemovitost v osobním vlastnictví. Jedna se o dvoupatrový byt 4+kk se třemi lodžiemi, se dvěma terasami a pochozí střechou, které nejsou započteny v podlahové ploše bytu. Užitná plocha bytu čini 174 m2. Celková plocha bytu včetně teras, lodžií a pochozí střechy je 266 m2. Byt se nachází ve 2. a 3. podlaží novostavby z roku 2009 v Praze 5, Stodůlkách. K bytu náleží uzamykatelná garáž, další garážové stání a sklep v 1PP budovy.
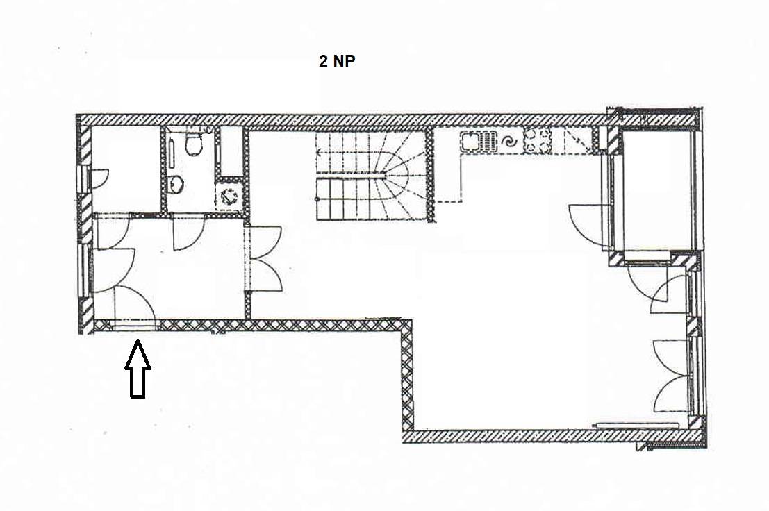
Jednotka se skládá ze čtyř místností a přislušenství o následující ploše.
2NP:
předsíň 7,4 m2
WC 2,4 m2
obývací pokoj + kk 49,4 m2
komora 2,9 m2
lodžie 3,9 m2
3NP:
chodba 14,1 m2
pokoj 25,2 m2
pokoj 21,2 m2
pokoj 17,6 m2
koupelna + WC 5,1 m2
koupelna + WC 10,7 m2
komora 7 m2
komora 2,5 m2
schodiště 4,9 m2
Lodžie 3,6 m2
lodžie 10,5 m2
terasa 17,9 m2
terasa 17,9 m2
pochozí střecha 19,1 m2
pochozí střecha 19 m2
Výborná infrastruktura a dopravní dostupnost. Nedaleko je MAKRO, BILLA, LIDL, ALBERT, TESCO. Je zde škola, školka, fitness centrum, lékárny, zdravotnická zařízení, kavárny a restaurace. Stanice metra „B“ Luka je vzdálena 10 minut chůze. Do centra Prahy se dostanete za 20 minut metrem. V bezprostřední blízkosti je autobusová zastávka. V dochazkové vzdalenosti se nachází Prokopské a Dalejské Údolí.
Pro více informací nebo sjednání termínu prohlídky neváhejte kontaktovat realitního makléře.
Pomocí naší hypoteční kalkulačky si můžete udělat orientační představu o výši měsíčních splátek hypotéky. O vše ostatní se pak postaráme my ve spolupráci s našimi obchodními partnery.
87 048 Kč
* Odhadovaná měsíční splátka vychází z výše úvěru Kč s pevnou úrokovou sazbou % po celou dobu trvání úvěru.
Prodáváte nemovitost a potřebujete zjistit její reálnou hodnotu?
Uživatel serveru RealityMIX.cz (dále jen „Server“) dostupného na internetové adrese (URL) https://www.realitymix.cz, který provozuje společnost DALTEN media s.r.o., se sídlem Na Harfě 916/9a, Praha 9, 190 00, IČO: 271 35 306 (dále jen „Správce“) jako provozovateli tohoto Serveru uděluje svůj výslovný souhlas v souladu s ustanovením § 5 zákona č. 101/2000 Sb. O ochraně osobních údajů a o změně některých zákonů, v platném znění (dále jen „zákon o ochraně osobních údajů“), se zpracováním uživatelem poskytnutých osobních údajů a dalších dat.
Uživatel poskytuje Správci osobní údaje v rozsahu: jméno, příjmení, e-mailová adresa, telefonický kontakt a další data, a to z důvodu projeveného zájmu o nemovitost, kde prostřednictvím služby Serveru Správce osloví Uživatel inzerenta uvedeného v detailu
nemovitosti - Abrupt Invest s.r.o. (IČ 27202151) se zájmem o jeho služby.
Uživatel tyto osobní údaje poskytuje dobrovolně a bere na vědomí, že součástí služeb Správce, které Správce Uživateli poskytuje, je vyhledání všech Uživateli vyhovujících (dle parametrů - cena, typ nemovitosti, lokalita atd.) nemovitostí. Správce za tímto účelem provozuje aplikace Hlídací pes a newsletter. Tyto služby je možné z každého zaslaného emailu odhlásit. Souhlas se zpracováním osobních údajů Uživatel poskytuje Správci na dobu neurčitou s tím, že svůj udělený souhlas může Uživatel kdykoliv na drese správce info@realitymix.cz odvolat. Správce garantuje Uživateli i další práva uvedené v ustanovení §11 a §21 zákoba č. 101/200 Sb. Ve znění pozdějších předpisů.
Více informací o zpracování údajů získáte zde (realitymix.cz/zasady-ochrany-osobnich-udaju)