Moderní rodinný dům 4+kk ve finském stylu - Předboj, Praha-východ
Upozornění: Tato nabídka je rezervována konkrétním zájemcem a v rezervační lhůtě není k dispozici! Exkluzivně doporučujeme ke koupi nadstandardní rodi nný dům o dispozici 4+kk v žádané lokalitě Předboj, jen 10minut jízdy od Prahy. Dům kombinuje kvalitní materiály, moderní technologie a promyšlené dispoziční řešení. Ideální pro rodinné bydlení v klidném prostředí s výbornou dostupností.
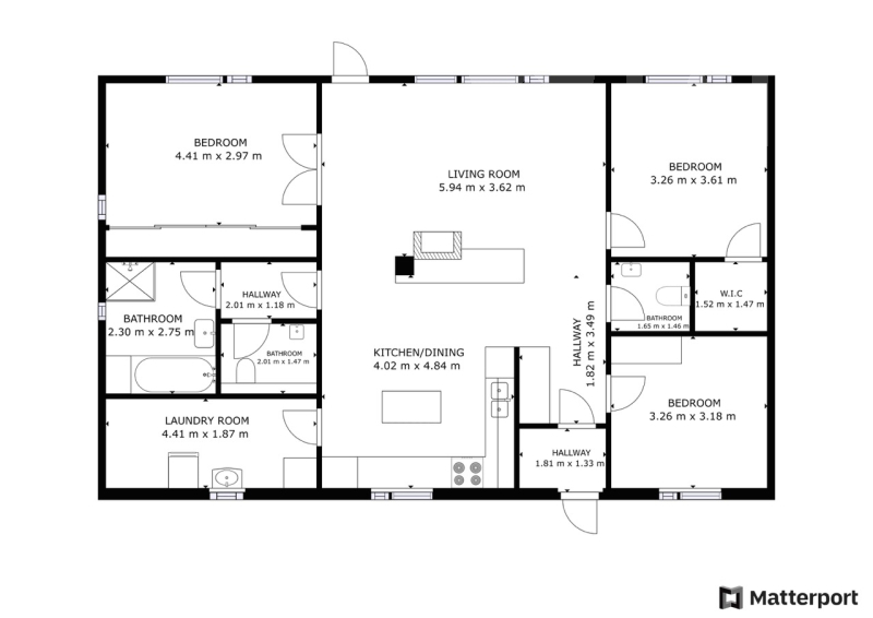
Dům byl postaven ve finském stylu, který zajišťuje výborné izolační vlastnosti a dlouhou životnost. V interiéru se nachází prostorný obývací pokoj s krbem značky Jotul, plně vybavený kuchyňský kout se spotřebiči, hlavní ložnice, dva další pokoje, koupelna s vanou i sprchovým koutem, dvě samostatné toalety, technická místnost a sklad. Podlahy jsou kombinací plovoucího lamina a dlažby.
Vytápění zajišťuje teplovodní podlahové topení napojené na tepelné čerpadlo Nibe a je typu vzduch-voda. V domě je dále instalována centrální rekuperace vzduchu pro zdravé vnitřní klima a klimatizace pro maximální komfort v letních měsících. Samozřejmostí je zabezpečovací systém Jablotron s možností napojení na PCO. Pro energetickou soběstačnost pak jistě nebude problém instalace fotovoltaické elektrárny.
Na pečlivě udržované zahradě se nachází zastřešený bazén se slanou technologií a vlastním tepelným čerpadlem, terasa pro venkovní posezení, zahradní domek a automatický závlahový systém Hunter. Příjezd k domu je řešen přes elektricky ovládanou bránu, k dispozici je přístřešek pro auto.
Obec Předboj nabízí kompletní občanskou vybavenost - mateřskou školu, restauraci, knihovnu, dětská hřiště, sportovní areál a populární golfový resort Yard Resort. Základní škola je v nedalekých Líbeznicích. Spojení do Prahy zajišťuje autobusová linka PID (na metro Ládví), případně vlaková stanice Kojetice.
Hlavní výhody:
- Dispozice 4+kk
- Podlahové topení + krb Jotul
- Rekuperace, klimatizace
- Zabezpečení Jablotron
- Bazén se slanou technologií a tepelným čerpadlem
- Automatická závlaha Hunter
- Přístřešek pro auto + el. brána
- Vzrostlá zahrada a terasa
- Výborná dopravní dostupnost do Prahy
Pro více informací nás neváhejte kontaktovat, popřípadě si rovnou zavolejte o prohlídku.
Uživatel serveru RealityMIX.cz (dále jen „Server“) dostupného na internetové adrese (URL) https://www.realitymix.cz, který provozuje společnost DALTEN media s.r.o., se sídlem Na Harfě 916/9a, Praha 9, 190 00, IČO: 271 35 306 (dále jen „Správce“) jako provozovateli tohoto Serveru uděluje svůj výslovný souhlas v souladu s ustanovením § 5 zákona č. 101/2000 Sb. O ochraně osobních údajů a o změně některých zákonů, v platném znění (dále jen „zákon o ochraně osobních údajů“), se zpracováním uživatelem poskytnutých osobních údajů a dalších dat.
Uživatel poskytuje Správci osobní údaje v rozsahu: jméno, příjmení, e-mailová adresa, telefonický kontakt a další data, a to z důvodu projeveného zájmu o nemovitost, kde prostřednictvím služby Serveru Správce osloví Uživatel inzerenta uvedeného v detailu
nemovitosti - Bidli reality, a.s. (IČ 06790763) se zájmem o jeho služby. Tato společnost je součástí seskupení/sítě/franšízového modelu realitních kanceláří, jejich seznam můžete zobrazit kliknutím na tento odkaz.
Hypocentrum modré pyramidy - Praha (IČ ) , Hypocentrum modré pyramidy - Brno (IČ ) , Hypocentrum Modré pyramidy - Hradec Králové (IČ ) , Hypocentrum Modré pyramidy - České Budějovice (IČ ) , Hypocentrum Modré pyramidy - Pardubice (IČ ) , Hypocentrum Modré pyramidy - Plzeň (IČ ) , Hypocentrum Modré pyramidy - Ústí nad Labem (IČ ) , Hypocentrum Modré pyramidy - Ostrava (IČ ) , Hypocentrum Modré pyramidy - Olomouc (IČ ) , Bidli reality, a.s. (IČ 06790763)
Uživatel tyto osobní údaje poskytuje dobrovolně a bere na vědomí, že součástí služeb Správce, které Správce Uživateli poskytuje, je vyhledání všech Uživateli vyhovujících (dle parametrů - cena, typ nemovitosti, lokalita atd.) nemovitostí. Správce za tímto účelem provozuje aplikace Hlídací pes a newsletter. Tyto služby je možné z každého zaslaného emailu odhlásit. Souhlas se zpracováním osobních údajů Uživatel poskytuje Správci na dobu neurčitou s tím, že svůj udělený souhlas může Uživatel kdykoliv na drese správce info@realitymix.cz odvolat. Správce garantuje Uživateli i další práva uvedené v ustanovení §11 a §21 zákoba č. 101/200 Sb. Ve znění pozdějších předpisů.
Více informací o zpracování údajů získáte zde (realitymix.cz/zasady-ochrany-osobnich-udaju)